ドゥーエ東十条304 3階 | 1DK | 14万円
インターネット使用料無料!ペット飼育相談可!
| 賃料 | 14万円 | 管理費・共益費 | 1万円 |
|---|---|---|---|
| 敷金/礼金 | 1ヶ月 / 1ヶ月 | 専有面積 | 35.94m² |
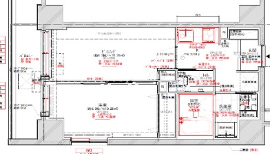
| 間取り | 1DK | 階建 | 3階/14階建 |
ドゥーエ東十条304の詳細
| 物件種別 | マンション | ||
|---|---|---|---|
| 賃料 | 14万円 | 管理費・共益費 | 1万円 |
| 敷金/保証金 | 1ヶ月 / - | 礼金/償却・敷引 | 1ヶ月 / - |
| 更新料 | 1ヶ月 | ||
| その他費用 | 鍵交換費用:16,500円 | ||
| 所在地 | 東京都北区中十条4丁目1-14 | ||
| 交通 |
JR京浜東北・根岸線「東十条駅」 徒歩6分 |
||
| 間取り | 1DK | 間取り内訳 | |
| 専有面積 | 35.94m² | バルコニー面積 | |
| 築年月(築年数) | 2008年03月(築18年) | 方位 | - |
| 建物構造 | RC(鉄筋コンクリート) | 所在階/階建 | 3階/14階建 |
| 総戸数 | - | 駐車場 | |
| 保険料 | 要 24,000円 2年 | 契約期間 | 2年間 |
| 現況(予定年月) | 2026年05月下旬 | ||
| 管理 | |||
| 設備・条件 | 2階以上、 | ||
| 備考 | 1年未満の解約は総賃料1ヶ月分の違約金有。退去時:室内清掃費、エアコン清掃費は借主負担。インターネットは、全戸一括利用型のため、使用時の環境・状況により速度が低下する場合がございます。インターネット使用料は、無料のサービスと致しますが、将来変更があり、プロバイダ料金などが別途かかることがあります。ペット条件:犬・猫(小型2匹まで)ペット飼育時、敷金1ヶ月分申し受けます。 | ||
| 周辺施設 |
コンビニ距離520m、スーパー距離553m、病院距離451m |
||
| 物件番号 | 1002899 | 取引態様 | 仲介 |
| 情報更新日 | 2026年03月15日 | ||
| 物件番号 | |||
敷金・礼金・家賃・入居時期時期など、何でもご相談ください!
学生さんのお部屋探しも全力でバックアップ!
ハウス・トゥ・ハウス十条店で元気にお待ちしております!







