グラントゥルース巣鴨704 7階 | 1K | 11.9万円
お車でご案内いたします。お気軽にお問い合わせください。
| 賃料 | 11.9万円 | 管理費・共益費 | 1.2万円 |
|---|---|---|---|
| 敷金/礼金 | なし / なし | 専有面積 | 21.71m² |
| 間取り | 1K | 階建 | 7階/12階建 |
360度パノラマ
グラントゥルース巣鴨704の詳細
| 物件種別 | マンション | ||
|---|---|---|---|
| 賃料 | 11.9万円 | 管理費・共益費 | 1.2万円 |
| 敷金/保証金 | なし / 1ヶ月 | 礼金/償却・敷引 | なし / - |
| 更新料 | 1.5ヶ月 | ||
| その他費用 |
くらしーど24:16,500円 鍵交換費用:24,200円 室内清掃費用:52,800円 |
||
| 所在地 | 東京都豊島区巣鴨1丁目27-10 | ||
| 交通 | |||
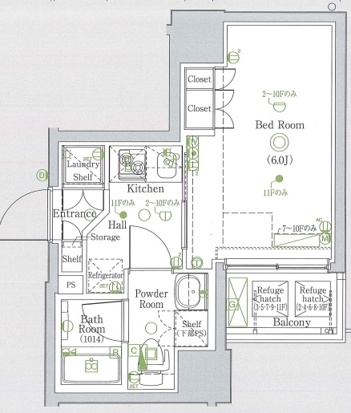
| 間取り | 1K | 間取り内訳 |
洋室 6 畳 1 室 |
| 専有面積 | 21.71m² | バルコニー面積 | |
| 築年月(築年数) | 2012年04月(築13年) | 方位 | - |
| 建物構造 | RC(鉄筋コンクリート) | 所在階/階建 | 7階/12階建 |
| 総戸数 | 44戸 | 駐車場 | |
| 保険料 | 要 18,000円 2年 | 契約期間 | 2年間 |
| 現況(予定年月) | 2026年03月上旬 | ||
| 管理 | |||
| 設備・条件 | 2階以上、システムキッチン、バス・トイレ別、温水洗浄便座、浴室乾燥機、室内洗濯機置き場、フローリング、エアコン、バルコニー、分譲賃貸、礼金なし、保証人不要、ペット相談、360°パノラマ有り、オートロック、TVドアホン、宅配ボックス、エレベータ、都市ガス | ||
| 備考 | ◆退去時エアコン洗浄費1台あたり14300円(税込) ◆ペット相談可(保証金1ヶ月追加/退去時の消臭消毒費用:税込16500円追加)/犬・猫(小型2匹まで) ◆保証金は貸主受領時に全額償却されます ◆1年未満の解約時は総賃料2ヶ月分、2年未満の解約時は総賃料1ヶ月分の短期解約違約金あり ◆解約予告2か月前 | ||
| 周辺施設 |
コンビニ距離136m、スーパー距離203m、病院距離644m |
||
| 物件番号 | 975390 | 取引態様 | 仲介 |
| 情報更新日 | 2026年01月20日 | ||
| 物件番号 | |||
敷金・礼金・家賃・入居時期時期など、何でもご相談ください!
JR山手線・巣鴨駅から徒歩1分!
ハウス・トゥ・ハウス巣鴨店で元気にお待ちしております!







