アイルプレミアム池袋ノルド203 2階 | 2K | 14.7万円
共用部にはエレベータ・敷地内ごみ置き場・バイク置場など様々な設備やサービスが揃っているので便利です。
| 賃料 | 14.7万円 | 管理費・共益費 | 1.2万円 |
|---|---|---|---|
| 敷金/礼金 | なし / なし | 専有面積 | 33.13m² |
| 間取り | 2K | 階建 | 2階/12階建 |
アイルプレミアム池袋ノルド203の詳細
| 物件種別 | マンション | ||
|---|---|---|---|
| 賃料 | 14.7万円 | 管理費・共益費 | 1.2万円 |
| 敷金/保証金 | なし / 1ヶ月 | 礼金/償却・敷引 | なし / - |
| 更新料 | 1.5ヶ月 | ||
| その他費用 | 事務手数料:11,000円 | ||
| 所在地 | 東京都板橋区板橋4丁目4-7 | ||
| 交通 | |||
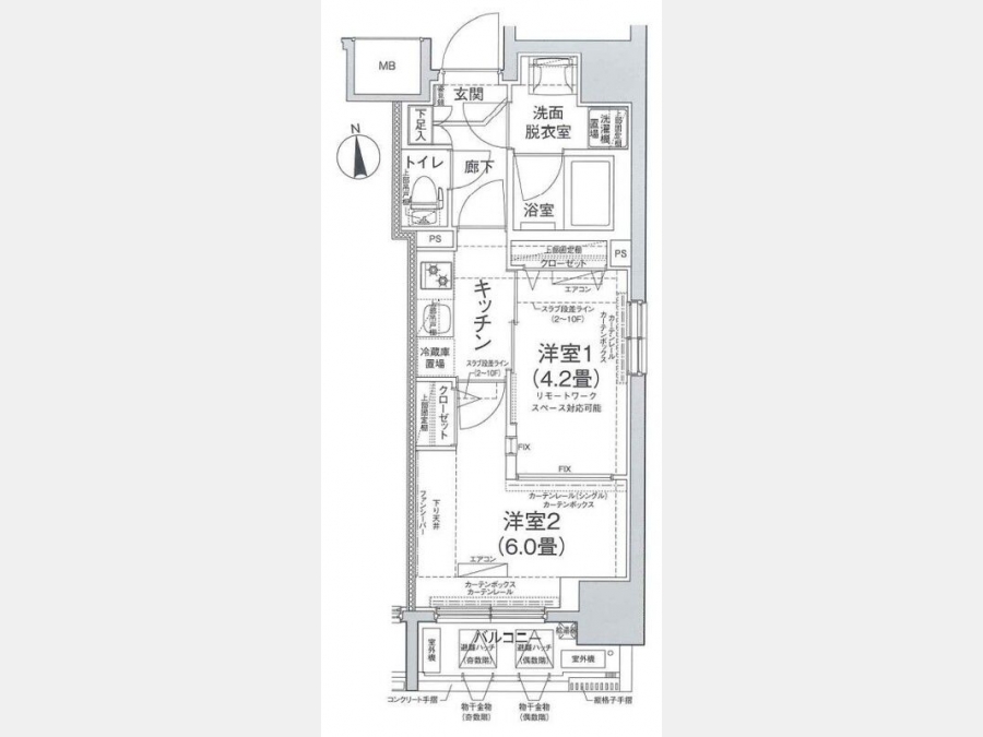
| 間取り | 2K | 間取り内訳 |
洋室 6 畳 洋室 4.2 畳 |
| 専有面積 | 33.13m² | バルコニー面積 | |
| 築年月(築年数) | 2022年04月(築3年) | 方位 | 南 |
| 建物構造 | RC(鉄筋コンクリート) | 所在階/階建 | 2階/12階建 |
| 総戸数 | - | 駐車場 | |
| 保険料 | 要 | 契約期間 | 2年間 |
| 現況(予定年月) | 2026年04月中旬 | ||
| 管理 | |||
| 設備・条件 | 2階以上、角部屋、南向き部屋、システムキッチン、バス・トイレ別、温水洗浄便座、浴室乾燥機、室内洗濯機置き場、フローリング、エアコン、バルコニー、分譲賃貸、保証人不要、ペット相談、2人入居相談、インターネット対応、BSアンテナ、CSアンテナ、CATV、オートロック、TVドアホン、防犯カメラ、宅配ボックス、バイク置き場、駐輪場、エレベータ、都市ガス | ||
| 備考 | 火災保険+24時間緊急対応料2200円(月額) ペット飼育時敷金1ヶ月分追加・退去時償却。短期解約違約金有。保証金1ヶ月分は契約時償却。退去時ハウスクリーニング代がかかります。 | ||
| 周辺施設 |
コンビニ距離117m、スーパー距離41m、病院距離81m |
||
| 物件番号 | 983940 | 取引態様 | 仲介 |
| 情報更新日 | 2026年01月30日 | ||
| 物件番号 | |||
敷金・礼金・家賃・入居時期時期など、何でもご相談ください!
池袋まで埼京線で5分というアクセス利便性が魅力★
ハウス・トゥ・ハウス板橋店で元気にお待ちしております!







