アークマーク王子1301 13階 | 1K | 12万円
収納はシューズボックス・クロゼットなどが備え付けられているので、衣類や日用品の収納に重宝します。
| 賃料 | 12万円 | 管理費・共益費 | 0.9万円 |
|---|---|---|---|
| 敷金/礼金 | なし / なし | 専有面積 | 25.66m² |
| 間取り | 1K | 階建 | 13階/15階建 |
アークマーク王子1301の詳細
| 物件種別 | マンション | ||
|---|---|---|---|
| 賃料 | 12万円 | 管理費・共益費 | 0.9万円 |
| 敷金/保証金 | なし / - | 礼金/償却・敷引 | なし / - |
| 更新料 | 1ヶ月 | ||
| その他費用 |
入居中サポート:16,500円 鍵交換費用:22,000円 |
||
| 所在地 | 東京都北区王子本町1丁目28-13 | ||
| 交通 |
JR京浜東北・根岸線「王子駅」 徒歩10分 JR京浜東北・根岸線「東十条駅」 徒歩15分 |
||
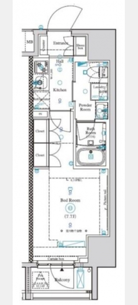
| 間取り | 1K | 間取り内訳 |
洋室 7.7 畳 |
| 専有面積 | 25.66m² | バルコニー面積 | |
| 築年月(築年数) | 2022年03月(築4年) | 方位 | 北東 |
| 建物構造 | RC(鉄筋コンクリート) | 所在階/階建 | 13階/15階建 |
| 総戸数 | - | 駐車場 | |
| 保険料 | 要 23,000円 2年 | 契約期間 | 2年間 |
| 現況(予定年月) | 2026年04月下旬 | ||
| 管理 | |||
| 設備・条件 | 2階以上、システムキッチン、バス・トイレ別、温水洗浄便座、浴室乾燥機、室内洗濯機置き場、フローリング、エアコン、バルコニー、礼金なし、敷金なし、保証人不要、ペット相談、インターネット対応、BSアンテナ、CSアンテナ、CATV、オートロック、TVドアホン、宅配ボックス、バイク置き場、駐輪場、エレベータ、都市ガス | ||
| 備考 | ペット飼育時条件有 1年未満の解約時、総賃料1ヶ月分の違約金あり 解約予告2か月前 | ||
| 周辺施設 |
コンビニ距離104m、スーパー距離283m |
||
| 物件番号 | 996960 | 取引態様 | 仲介 |
| 情報更新日 | 2026年03月01日 | ||
| 物件番号 | |||
敷金・礼金・家賃・入居時期時期など、何でもご相談ください!
王子駅徒歩1分!グリーンの看板が目印です!
ハウス・トゥ・ハウス王子店で元気にお待ちしております!







