フェルクルールプレスト池袋ウエスト4F 4階 | 1K | 10万円
最寄りの公園高松二丁目児童遊園(徒歩5分)。留守中に注文した商品が届くので、配送時間を気にせず注文が
| 賃料 | 10万円 | 管理費・共益費 | 1.9万円 |
|---|---|---|---|
| 敷金/礼金 | なし / 20,000円 | 専有面積 | 26.15m² |
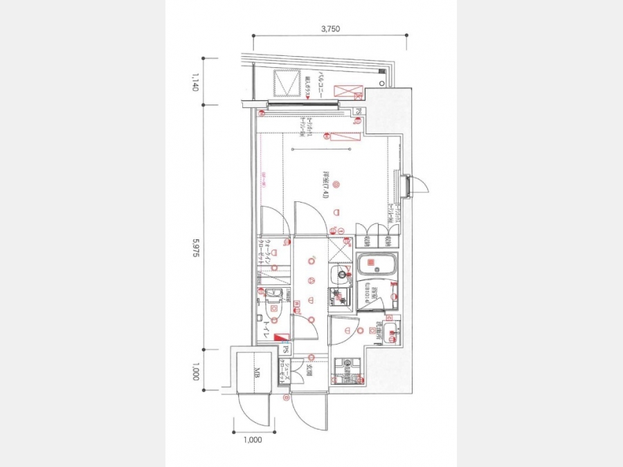
| 間取り | 1K | 階建 | 4階/14階建 |
フェルクルールプレスト池袋ウエスト4Fの詳細
| 物件種別 | マンション | ||
|---|---|---|---|
| 賃料 | 10万円 | 管理費・共益費 | 1.9万円 |
| 敷金/保証金 | なし / 1ヶ月 | 礼金/償却・敷引 | 20,000円 / - |
| 更新料 | 1.1ヶ月 | ||
| その他費用 |
ハウスクリーニング(入居時):59,400円 エアコン分解清掃(入居時):16,500円 契約事務手数料(入居時):11,000円 24時間生活サポート(入居時):19,800円 鍵交換費用:33,000円 |
||
| 所在地 | 東京都板橋区南町14-4 | ||
| 交通 | |||
| 間取り | 1K | 間取り内訳 |
洋室 7.4 畳 1 室 K 1 室 |
| 専有面積 | 26.15m² | バルコニー面積 | |
| 築年月(築年数) | 2019年08月(築6年) | 方位 | 西 |
| 建物構造 | RC(鉄筋コンクリート) | 所在階/階建 | 4階/14階建 |
| 総戸数 | - | 駐車場 | 無 |
| 保険料 | 要 20,000円 2年 | 契約期間 | 2年間 |
| 現況(予定年月) | 2026年04月下旬 | ||
| 管理 | |||
| 設備・条件 | 2階以上、角部屋、システムキッチン、バス・トイレ別、温水洗浄便座、浴室乾燥機、室内洗濯機置き場、フローリング、エアコン、ウォークインクローゼット、バルコニー、分譲賃貸、ペット相談、2人入居相談、BSアンテナ、CSアンテナ、光ファイバー、オートロック、TVドアホン、防犯カメラ、宅配ボックス、バイク置き場、駐輪場、エレベータ、都市ガス | ||
| 備考 | 24時間生活サポート(入居時)19800円(初期) 解約予告2ヶ月前。 短期解約違約金:2年未満は総賃料の1ヶ月分。 ペット飼育可能/猫不可、保証金1ヶ月増額、契約時償却。 契約時ルームクリーニング代、エアコンクリーニング代、税率変更による差額は退去時請求。 保証金契約時償却、償却に原状回復費用は含みません。 あ駐輪場、ミニバイク置場(要空確認)。 BS・CS・CATV・インターネット対応は要確認。 | ||
| 周辺施設 |
コンビニ距離269m、スーパー距離90m、病院距離371m |
||
| 物件番号 | 996618 | 取引態様 | 仲介 |
| 情報更新日 | 2026年02月28日 | ||
| 物件番号 | |||
敷金・礼金・家賃・入居時期時期など、何でもご相談ください!
JR山手線・巣鴨駅から徒歩1分!
ハウス・トゥ・ハウス巣鴨店で元気にお待ちしております!







