セジョリ池袋West201 2階 | 1K | 11万円
共用部には宅配ボックスが備え付けられているため、忙しくて在宅可時間が少なくても荷物を受け取れます。
| 賃料 | 11万円 | 管理費・共益費 | 1.2万円 |
|---|---|---|---|
| 敷金/礼金 | なし / なし | 専有面積 | 25.43m² |
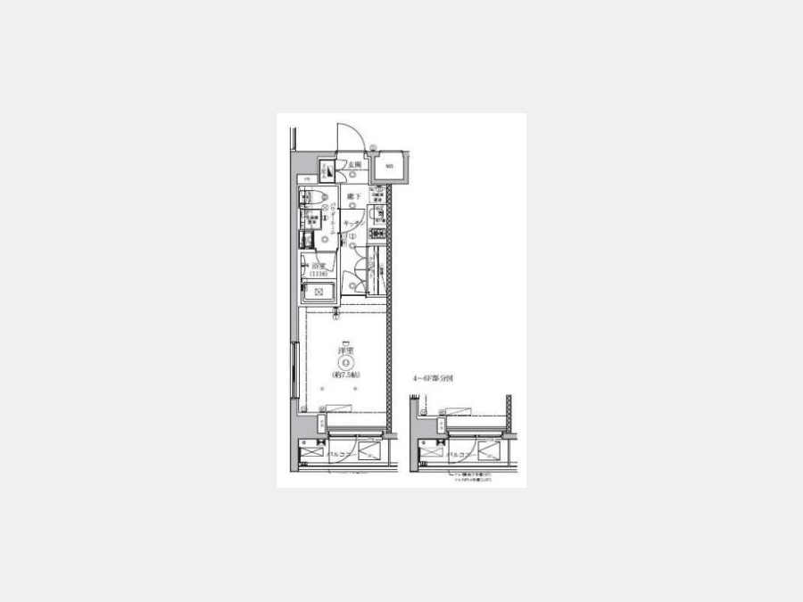
| 間取り | 1K | 階建 | 2階/6階建 |
セジョリ池袋West201の詳細
| 物件種別 | マンション | ||
|---|---|---|---|
| 賃料 | 11万円 | 管理費・共益費 | 1.2万円 |
| 敷金/保証金 | なし / - | 礼金/償却・敷引 | なし / - |
| 更新料 | 1.5ヶ月 | ||
| その他費用 |
鍵交換費用:22,000円 室内清掃費用:55,000円 |
||
| 所在地 | 東京都豊島区池袋3丁目59-4 | ||
| 交通 | |||
| 間取り | 1K | 間取り内訳 |
洋室 7.5 畳 |
| 専有面積 | 25.43m² | バルコニー面積 | |
| 築年月(築年数) | 2018年01月(築8年) | 方位 | 南西 |
| 建物構造 | RC(鉄筋コンクリート) | 所在階/階建 | 2階/6階建 |
| 総戸数 | - | 駐車場 | |
| 保険料 | 要 20,000円 2年 | 契約期間 | 2年間 |
| 現況(予定年月) | 2026年04月下旬 | ||
| 管理 | |||
| 設備・条件 | 2階以上、角部屋、システムキッチン、バス・トイレ別、温水洗浄便座、浴室乾燥機、追い焚き、室内洗濯機置き場、フローリング、エアコン、バルコニー、分譲賃貸、礼金なし、敷金なし、ペット相談、インターネット対応、BSアンテナ、CSアンテナ、オートロック、TVドアホン、宅配ボックス、エレベータ、都市ガス | ||
| 備考 | 解約予告2ヶ月前。更新事務手数料11000円。ペット飼育相談可(敷金1ヶ月追加、償却)。お車でご案内します。お気軽にお問い合わせ下さい。 | ||
| 周辺施設 |
コンビニ距離91m、スーパー距離162m、病院距離377m |
||
| 物件番号 | 988505 | 取引態様 | 仲介 |
| 情報更新日 | 2026年02月08日 | ||
| 物件番号 | |||
敷金・礼金・家賃・入居時期時期など、何でもご相談ください!
池袋まで埼京線で5分というアクセス利便性が魅力★
ハウス・トゥ・ハウス板橋店で元気にお待ちしております!







