サン田端803 8階 | 3LDK | 25.8万円
こだわりポイント満載のサン田端。暮らしに便利な業務スーパー 田端店(スーパー)がこちらから402m
| 賃料 | 25.8万円 | 管理費・共益費 | 2.5万円 |
|---|---|---|---|
| 敷金/礼金 | なし / なし | 専有面積 | 85.00m² |
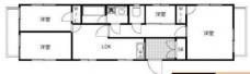
| 間取り | 3LDK | 階建 | 8階/9階建 |
サン田端803の詳細
| 物件種別 | マンション | ||
|---|---|---|---|
| 賃料 | 25.8万円 | 管理費・共益費 | 2.5万円 |
| 敷金/保証金 | なし / - | 礼金/償却・敷引 | なし / - |
| 更新料 | - | ||
| その他費用 |
サポート24:22,000円 室内清掃費用:140,000円 |
||
| 所在地 | 東京都北区田端新町2丁目18-9 | ||
| 交通 | |||
| 間取り | 3LDK | 間取り内訳 | |
| 専有面積 | 85.00m² | バルコニー面積 | |
| 築年月(築年数) | 1994年08月(築31年) | 方位 | - |
| 建物構造 | 鉄骨造 | 所在階/階建 | 8階/9階建 |
| 総戸数 | - | 駐車場 | |
| 保険料 | 要 18,000円 2年 | 契約期間 | 2年間 |
| 現況(予定年月) | 2026年04月下旬 | ||
| 管理 | |||
| 設備・条件 | 2階以上、角部屋、バス・トイレ別、室内洗濯機置き場、エアコン、バルコニー、礼金なし、敷金なし、 | ||
| 備考 | 解約予告2ヶ月前 短期解約違約金有 | ||
| 周辺施設 |
コンビニ距離21m、スーパー距離402m、病院距離824m |
||
| 物件番号 | 991120 | 取引態様 | 仲介 |
| 情報更新日 | 2026年02月14日 | ||
| 物件番号 | |||
敷金・礼金・家賃・入居時期時期など、何でもご相談ください!
3路線3駅利用可の板橋エリアでお部屋探し♪
ハウス・トゥ・ハウス板橋東口店で元気にお待ちしております!







