ベルシード板橋本町プレミア204 2階 | 2LDK | 20.4万円
都営三田線板橋本町駅周辺への引っ越しをお考えなら「ベルシード板橋本町プレミア」。志村警察署 前野町
| 賃料 | 20.4万円 | 管理費・共益費 | 1.5万円 |
|---|---|---|---|
| 敷金/礼金 | なし / 1ヶ月 | 専有面積 | 56.41m² |
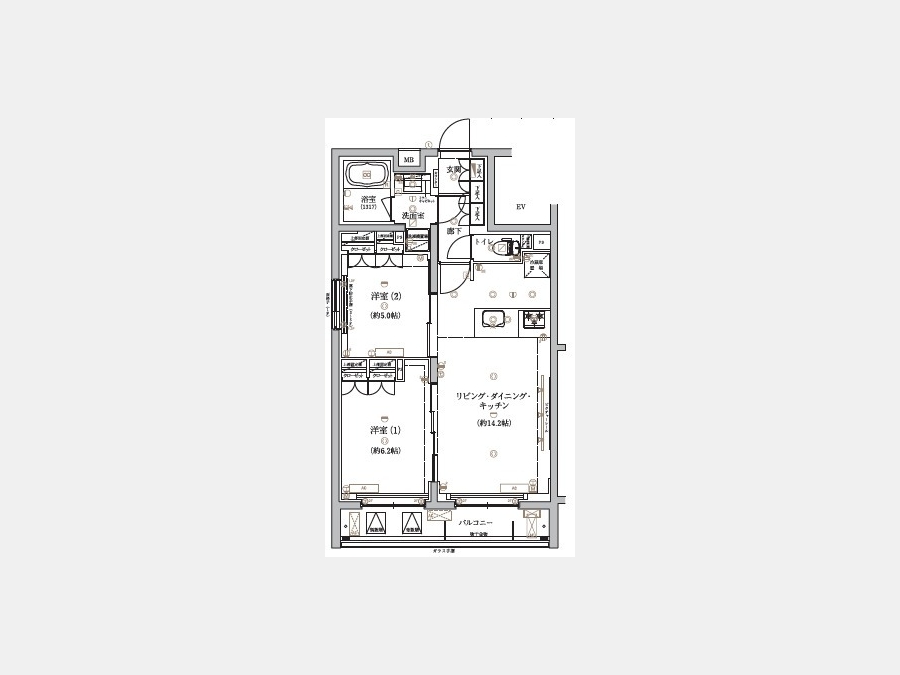
| 間取り | 2LDK | 階建 | 2階/5階建 |
ベルシード板橋本町プレミア204の詳細
| 物件種別 | マンション | ||
|---|---|---|---|
| 賃料 | 20.4万円 | 管理費・共益費 | 1.5万円 |
| 敷金/保証金 | なし / - | 礼金/償却・敷引 | 1ヶ月 / - |
| 更新料 | 1ヶ月 | ||
| その他費用 |
契約事務手数料:11,000円 鍵交換費用:33,000円 室内清掃費用:150,000円 |
||
| 所在地 | 東京都板橋区宮本町46-12 | ||
| 交通 | |||
| 間取り | 2LDK | 間取り内訳 |
洋室 6.2 畳 洋室 5 畳 LDK 14.2 畳 |
| 専有面積 | 56.41m² | バルコニー面積 | |
| 築年月(築年数) | 2022年03月(築3年) | 方位 | 北東 |
| 建物構造 | RC(鉄筋コンクリート) | 所在階/階建 | 2階/5階建 |
| 総戸数 | 45戸 | 駐車場 | |
| 保険料 | 要 20,000円 2年 | 契約期間 | 2年間 |
| 現況(予定年月) | 即時 | ||
| 管理 | |||
| 設備・条件 | 2階以上、システムキッチン、バス・トイレ別、温水洗浄便座、浴室乾燥機、室内洗濯機置き場、フローリング、エアコン、バルコニー、分譲賃貸、即入居可、敷金なし、保証人不要、BSアンテナ、CSアンテナ、CATV、光ファイバー、オートロック、TVドアホン、防犯カメラ、宅配ボックス、バイク置き場、駐輪場、エレベータ、都市ガス | ||
| 備考 | 24時間駆け付けサポート1100円(月額) 短期解約違約金:1年未満は総賃料1ヶ月分。更新事務手数料:新賃料0.3ヶ月分(税別)。収納はクロゼット・シューズボックスなど豊富なので、広々と空間を利用することも可能です。二口コンロが付いているマンションです。住まいを都営三田線板橋本町周辺で求めるのであれば、当社でお部屋探しを行ってください。当社でなら、きっとお客様の希望条件にマッチしたお部屋が見つかることでしょう | ||
| 周辺施設 |
コンビニ距離807m、スーパー距離258m、病院距離781m |
||
| 物件番号 | 964016 | 取引態様 | 仲介 |
| 情報更新日 | 2026年01月28日 | ||
| 物件番号 | |||
敷金・礼金・家賃・入居時期時期など、何でもご相談ください!
3路線3駅利用可の板橋エリアでお部屋探し♪
ハウス・トゥ・ハウス板橋東口店で元気にお待ちしております!







