クレイシアIDZ王子マークプレイス1003 10階 | 1K | 11.3万円
セキュリティ面は、TVインターホン・オートロックなどを備え付けているので安心して暮らせます。
| 賃料 | 11.3万円 | 管理費・共益費 | 1.5万円 |
|---|---|---|---|
| 敷金/礼金 | 1ヶ月 / 1ヶ月 | 専有面積 | 25.80m² |
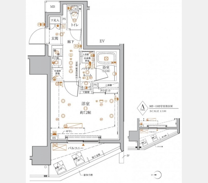
| 間取り | 1K | 階建 | 10階/12階建 |
クレイシアIDZ王子マークプレイス1003の詳細
| 物件種別 | マンション | ||
|---|---|---|---|
| 賃料 | 11.3万円 | 管理費・共益費 | 1.5万円 |
| 敷金/保証金 | 1ヶ月 / - | 礼金/償却・敷引 | 1ヶ月 / - |
| 更新料 | 1ヶ月 | ||
| その他費用 | カードキー発行:16,500円 | ||
| 所在地 | 東京都北区王子2丁目16-11 | ||
| 交通 |
JR京浜東北・根岸線「王子駅」 徒歩9分 |
||
| 間取り | 1K | 間取り内訳 | |
| 専有面積 | 25.80m² | バルコニー面積 | |
| 築年月(築年数) | 2022年02月(築4年) | 方位 | 西 |
| 建物構造 | RC(鉄筋コンクリート) | 所在階/階建 | 10階/12階建 |
| 総戸数 | - | 駐車場 | |
| 保険料 | 要 20,000円 2年 | 契約期間 | 2年間 |
| 現況(予定年月) | 2026年03月下旬 | ||
| 管理 | |||
| 設備・条件 | 2階以上、システムキッチン、バス・トイレ別、温水洗浄便座、浴室乾燥機、室内洗濯機置き場、エアコン、バルコニー、保証人不要、インターネット対応、オートロック、TVドアホン、防犯カメラ、宅配ボックス、エレベータ、都市ガス | ||
| 備考 | FAST ASSIST241100円(月額) 1年未満の解約時、総賃料1ヶ月分の違約金あり。 | ||
| 周辺施設 |
北区立王子桜中学校87m、コンビニ距離115m、病院距離177m |
||
| 物件番号 | 989375 | 取引態様 | 仲介 |
| 情報更新日 | 2026年02月11日 | ||
| 物件番号 | |||
敷金・礼金・家賃・入居時期時期など、何でもご相談ください!
王子駅徒歩1分!グリーンの看板が目印です!
ハウス・トゥ・ハウス王子店で元気にお待ちしております!







