ラフィスタ大師前EAST803 8階 | 1K | 8.5万円
ハウス・トゥ・ハウス・ネットサービス/田端店へご来店いただく際には、0358152828までお電話く
| 賃料 | 8.5万円 | 管理費・共益費 | 1.5万円 |
|---|---|---|---|
| 敷金/礼金 | 1ヶ月 / 1ヶ月 | 専有面積 | 25.35m² |
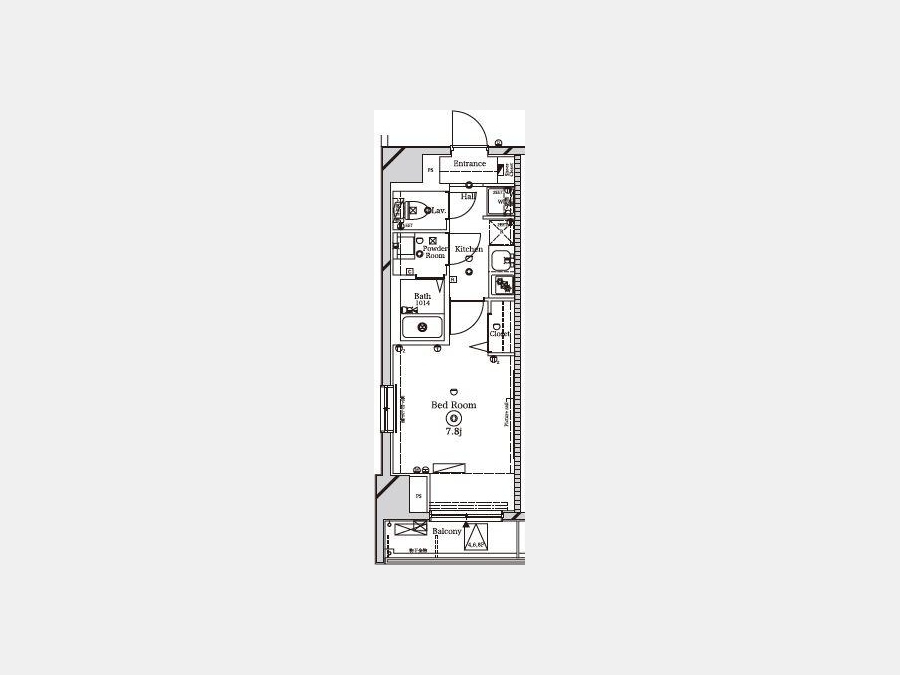
| 間取り | 1K | 階建 | 8階/10階建 |
ラフィスタ大師前EAST803の詳細
| 物件種別 | マンション | ||
|---|---|---|---|
| 賃料 | 8.5万円 | 管理費・共益費 | 1.5万円 |
| 敷金/保証金 | 1ヶ月 / - | 礼金/償却・敷引 | 1ヶ月 / - |
| 更新料 | 127,500円 | ||
| その他費用 |
契約事務手数料:11,000円 室内抗菌処理代:17,600円 入居中サポート:21,450円 鍵交換費用:22,000円 |
||
| 所在地 | 東京都足立区西新井本町1丁目15-8 | ||
| 交通 | |||
| 間取り | 1K | 間取り内訳 |
洋室 7.8 畳 1 室 |
| 専有面積 | 25.35m² | バルコニー面積 | |
| 築年月(築年数) | 2015年09月(築10年) | 方位 | 北 |
| 建物構造 | RC(鉄筋コンクリート) | 所在階/階建 | 8階/10階建 |
| 総戸数 | - | 駐車場 | |
| 保険料 | 要 23,000円 2年 | 契約期間 | 2年間 |
| 現況(予定年月) | 2026年04月上旬 | ||
| 管理 | |||
| 設備・条件 | 2階以上、角部屋、システムキッチン、バス・トイレ別、温水洗浄便座、浴室乾燥機、室内洗濯機置き場、フローリング、エアコン、バルコニー、分譲賃貸、ペット相談、2人入居相談、インターネット対応、BSアンテナ、CSアンテナ、CATV、オートロック、TVドアホン、宅配ボックス、駐輪場、エレベータ、都市ガス | ||
| 備考 | 短期解約違約金有 ペット相談可 | ||
| 周辺施設 |
コンビニ距離278m、スーパー距離616m、病院距離270m |
||
| 物件番号 | 988614 | 取引態様 | 仲介 |
| 情報更新日 | 2026年02月08日 | ||
| 物件番号 | |||
敷金・礼金・家賃・入居時期時期など、何でもご相談ください!
山手線・京浜東北線の2路線が使える便利な街・田端!
ハウス・トゥ・ハウス田端店で元気にお待ちしております!







