パークアクシス大塚902 9階 | 2LDK | 23万円
お車でご案内いたします。お気軽にお問い合わせください。
| 賃料 | 23万円 | 管理費・共益費 | 1.2万円 |
|---|---|---|---|
| 敷金/礼金 | 1ヶ月 / 1ヶ月 | 専有面積 | 53.31m² |
| 間取り | 2LDK | 階建 | 9階/14階建 |
パークアクシス大塚902の詳細
| 物件種別 | マンション | ||
|---|---|---|---|
| 賃料 | 23万円 | 管理費・共益費 | 1.2万円 |
| 敷金/保証金 | 1ヶ月 / - | 礼金/償却・敷引 | 1ヶ月 / - |
| 更新料 | 1ヶ月 | ||
| その他費用 |
鍵交換費用:16,500円 室内清掃費用:99,689円 |
||
| 所在地 | 東京都豊島区北大塚2丁目3-11 | ||
| 交通 | |||
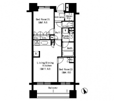
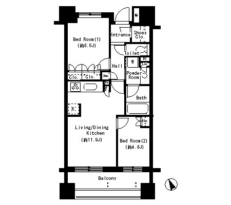
| 間取り | 2LDK | 間取り内訳 |
洋室 6.5 畳 1 室 洋室 4.6 畳 1 室 LDK 11.9 畳 1 室 |
| 専有面積 | 53.31m² | バルコニー面積 | |
| 築年月(築年数) | 2005年12月(築20年) | 方位 | 南西 |
| 建物構造 | RC(鉄筋コンクリート) | 所在階/階建 | 9階/14階建 |
| 総戸数 | - | 駐車場 | 無 |
| 保険料 | 要 | 契約期間 | 2年間 |
| 現況(予定年月) | 2026年04月下旬 | ||
| 管理 | |||
| 設備・条件 | 2階以上、システムキッチン、バス・トイレ別、室内洗濯機置き場、フローリング、エアコン、バルコニー、保証人不要、楽器相談、2人入居相談、インターネット対応、BSアンテナ、CSアンテナ、CATV、オートロック、宅配ボックス、駐輪場、エレベータ | ||
| 備考 | 口座引落料220円(月額) ◆1年未満の解約時は賃料等1ヶ月分の短期解約違約金あり ◆ピアノ相談可(グランドピアノ不可) | ||
| 周辺施設 |
コンビニ距離134m、スーパー距離249m、病院距離432m |
||
| 物件番号 | 1004308 | 取引態様 | 仲介 |
| 情報更新日 | 2026年03月16日 | ||
| 物件番号 | |||
敷金・礼金・家賃・入居時期時期など、何でもご相談ください!
JR山手線・巣鴨駅から徒歩1分!
ハウス・トゥ・ハウス巣鴨店で元気にお待ちしております!







