アンベリール西日暮里102 1階 | 1K | 6.8万円
オートロックと玄関の鍵で二重にロックできるので防犯対策として優れています。いつでも洗濯物を干せるの
| 賃料 | 6.8万円 | 管理費・共益費 | 1万円 |
|---|---|---|---|
| 敷金/礼金 | なし / なし | 専有面積 | 18.40m² |
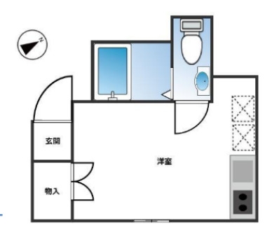
| 間取り | 1K | 階建 | 1階/3階建 |
アンベリール西日暮里102の詳細
| 物件種別 | アパート | ||
|---|---|---|---|
| 賃料 | 6.8万円 | 管理費・共益費 | 1万円 |
| 敷金/保証金 | なし / 1ヶ月 | 礼金/償却・敷引 | なし / - |
| 更新料 | 1ヶ月 | ||
| その他費用 |
契約事務手数料:11,000円 24H365日生活安心サポート:16,500円 鍵交換費用:26,500円 |
||
| 所在地 | 東京都荒川区東尾久2丁目43-4 | ||
| 交通 |
日暮里・舎人ライナー「赤土小学校前駅」 徒歩1分 |
||
| 間取り | 1K | 間取り内訳 | |
| 専有面積 | 18.40m² | バルコニー面積 | |
| 築年月(築年数) | 2017年09月(築8年) | 方位 | 南東 |
| 建物構造 | 木造 | 所在階/階建 | 1階/3階建 |
| 総戸数 | - | 駐車場 | 無 |
| 保険料 | 要 20,000円 2年 | 契約期間 | 2年間 |
| 現況(予定年月) | 2026年04月下旬 | ||
| 管理 | |||
| 設備・条件 | 1階、システムキッチン、バス・トイレ別、温水洗浄便座、浴室乾燥機、室内洗濯機置き場、フローリング、エアコン、礼金なし、BSアンテナ、光ファイバー、オートロック、駐輪場、都市ガス | ||
| 備考 | 解約予告2ヶ月前 短期解約違約金有 | ||
| 周辺施設 |
コンビニ距離216m、スーパー距離357m、病院距離1,024m |
||
| 物件番号 | 988657 | 取引態様 | 仲介 |
| 情報更新日 | 2026年02月08日 | ||
| 物件番号 | |||
敷金・礼金・家賃・入居時期時期など、何でもご相談ください!
歴史と情緒が薫る街・西日暮里でお部屋探し♪
ハウス・トゥ・ハウス西日暮里店で元気にお待ちしております!







