カサブランカ上野入谷502 5階 | 1R | 9.8万円
インターネット無料♪複数沿線利用可能で通勤通学に便利♪
| 賃料 | 9.8万円 | 管理費・共益費 | 0.5万円 |
|---|---|---|---|
| 敷金/礼金 | 1ヶ月 / なし | 専有面積 | 22.04m² |
| 間取り | 1R | 階建 | 5階/5階建 |
カサブランカ上野入谷502の詳細
| 物件種別 | マンション | ||
|---|---|---|---|
| 賃料 | 9.8万円 | 管理費・共益費 | 0.5万円 |
| 敷金/保証金 | 1ヶ月 / - | 礼金/償却・敷引 | なし / - |
| 更新料 | 1ヶ月 | ||
| その他費用 |
リーヴサポート24/2年:19,800円 鍵交換費用:33,000円 室内清掃費用:44,000円 |
||
| 所在地 | 東京都台東区入谷2丁目20-3 | ||
| 交通 | |||
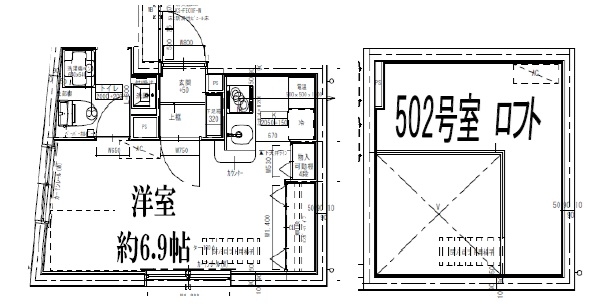
| 間取り | 1R | 間取り内訳 |
洋室 6.9 畳 |
| 専有面積 | 22.04m² | バルコニー面積 | |
| 築年月(築年数) | 2021年10月(築4年) | 方位 | 南 |
| 建物構造 | RC(鉄筋コンクリート) | 所在階/階建 | 5階/5階建 |
| 総戸数 | - | 駐車場 | 無 |
| 保険料 | 要 | 契約期間 | 2年間 |
| 現況(予定年月) | 2026年03月中旬 | ||
| 管理 | |||
| 設備・条件 | 2階以上、最上階、南向き部屋、システムキッチン、バス・トイレ別、温水洗浄便座、浴室乾燥機、室内洗濯機置き場、フローリング、ロフト付き、エアコン、礼金なし、オール電化、インターネット対応、オートロック、TVドアホン、宅配ボックス | ||
| 備考 | 更新事務手数料5500円。 短期解約違約金有:1年以内の解約で総賃料1ヶ月分。 解約時エアコンクリーニング費用13200円/台。 | ||
| 周辺施設 |
コンビニ距離242m、スーパー距離216m、病院距離586m |
||
| 物件番号 | 995504 | 取引態様 | 仲介 |
| 情報更新日 | 2026年02月24日 | ||
| 物件番号 | |||
敷金・礼金・家賃・入居時期時期など、何でもご相談ください!
歴史と情緒が薫る街・西日暮里でお部屋探し♪
ハウス・トゥ・ハウス西日暮里店で元気にお待ちしております!







