カスタリア大塚Ⅱ804 8階 | 1R | 12.2万円
お車でご案内いたします。お気軽にお問い合わせください。
| 賃料 | 12.2万円 | 管理費・共益費 | 0.8万円 |
|---|---|---|---|
| 敷金/礼金 | 1ヶ月 / 1ヶ月 | 専有面積 | 30.24m² |
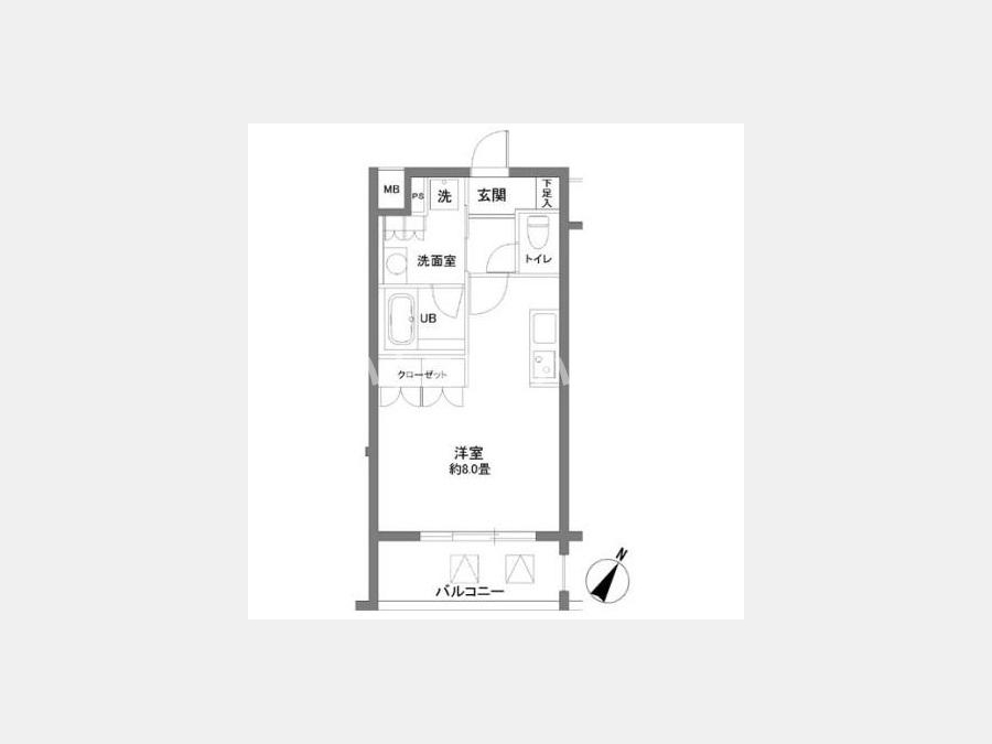
| 間取り | 1R | 階建 | 8階/13階建 |
カスタリア大塚Ⅱ804の詳細
| 物件種別 | マンション | ||
|---|---|---|---|
| 賃料 | 12.2万円 | 管理費・共益費 | 0.8万円 |
| 敷金/保証金 | 1ヶ月 / - | 礼金/償却・敷引 | 1ヶ月 / - |
| 更新料 | 1ヶ月 | ||
| その他費用 | 鍵交換費用:22,000円 | ||
| 所在地 | 東京都豊島区東池袋2丁目32-20 | ||
| 交通 | |||
| 間取り | 1R | 間取り内訳 | |
| 専有面積 | 30.24m² | バルコニー面積 | |
| 築年月(築年数) | 2004年09月(築21年) | 方位 | - |
| 建物構造 | SRC(鉄骨鉄筋コンクリート) | 所在階/階建 | 8階/13階建 |
| 総戸数 | 54戸 | 駐車場 | |
| 保険料 | 要 | 契約期間 | 2年間 |
| 現況(予定年月) | 2026年03月下旬 | ||
| 管理 | |||
| 設備・条件 | 2階以上、システムキッチン、バス・トイレ別、温水洗浄便座、浴室乾燥機、追い焚き、室内洗濯機置き場、フローリング、エアコン、バルコニー、ペット相談、BSアンテナ、CSアンテナ、CATV、オートロック、TVドアホン、防犯カメラ、宅配ボックス、バイク置き場、駐輪場、エレベータ、都市ガス | ||
| 備考 | ◆ペット飼養相談可:小型犬1匹、体高・体重制限有、敷金積増(犬+1ヶ月) ◆原則1年未満で解約された場合、違約金(フリーレント等含む)が発生します。 | ||
| 周辺施設 |
コンビニ距離84m、スーパー距離158m、病院距離557m |
||
| 物件番号 | 970226 | 取引態様 | 仲介 |
| 情報更新日 | 2026年03月12日 | ||
| 物件番号 | |||
敷金・礼金・家賃・入居時期時期など、何でもご相談ください!
山手線・京浜東北線の2路線が使える便利な街・田端!
ハウス・トゥ・ハウス田端店で元気にお待ちしております!







