ジェノヴィア三ノ輪Ⅱスカイガーデン803 8階 | 1K | 10.7万円
敷金礼金なしで初期費用抑えられます♪
| 賃料 | 10.7万円 | 管理費・共益費 | 1万円 |
|---|---|---|---|
| 敷金/礼金 | なし / なし | 専有面積 | 25.81m² |
| 間取り | 1K | 階建 | 8階/13階建 |
ジェノヴィア三ノ輪Ⅱスカイガーデン803の詳細
| 物件種別 | マンション | ||
|---|---|---|---|
| 賃料 | 10.7万円 | 管理費・共益費 | 1万円 |
| 敷金/保証金 | なし / - | 礼金/償却・敷引 | なし / - |
| 更新料 | 1ヶ月 | ||
| その他費用 |
鍵交換費用:27,500円 室内清掃費用:49,500円 |
||
| 所在地 | 東京都台東区日本堤2丁目3-2 | ||
| 交通 | |||
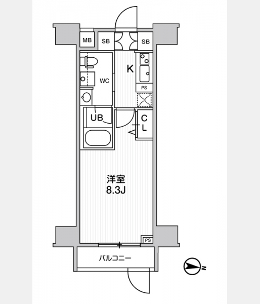
| 間取り | 1K | 間取り内訳 |
洋室 8.3 畳 |
| 専有面積 | 25.81m² | バルコニー面積 | |
| 築年月(築年数) | 2020年07月(築5年) | 方位 | 東 |
| 建物構造 | RC(鉄筋コンクリート) | 所在階/階建 | 8階/13階建 |
| 総戸数 | 68戸 | 駐車場 | |
| 保険料 | 要 15,000円 2年 | 契約期間 | 2年間 |
| 現況(予定年月) | 2026年04月上旬 | ||
| 管理 | |||
| 設備・条件 | 2階以上、システムキッチン、バス・トイレ別、温水洗浄便座、浴室乾燥機、室内洗濯機置き場、エアコン、バルコニー、礼金なし、敷金なし、ペット相談、インターネット対応、オートロック、TVドアホン、防犯カメラ、宅配ボックス、駐輪場、エレベータ、都市ガス | ||
| 備考 | ペット相談可:小型犬・猫1匹まで、敷金1ヶ月積み増し(償却無し)。1年未満の解約時総賃料2ヶ月分の違約金あり。 | ||
| 周辺施設 |
コンビニ距離351m、スーパー距離162m、病院距離854m |
||
| 物件番号 | 985025 | 取引態様 | 仲介 |
| 情報更新日 | 2026年02月03日 | ||
| 物件番号 | |||
敷金・礼金・家賃・入居時期時期など、何でもご相談ください!
歴史と情緒が薫る街・西日暮里でお部屋探し♪
ハウス・トゥ・ハウス西日暮里店で元気にお待ちしております!







