ルーブル小竹向原参番館401 4階 | 1K | 9.72万円
共用部にはゴミ出し24時間OK・宅配ボックスなどが備わっておりとても充実しています。
| 賃料 | 9.72万円 | 管理費・共益費 | 1.28万円 |
|---|---|---|---|
| 敷金/礼金 | なし / 1ヶ月 | 専有面積 | 27.32m² |
| 間取り | 1K | 階建 | 4階/5階建 |
ルーブル小竹向原参番館401の詳細
| 物件種別 | マンション | ||
|---|---|---|---|
| 賃料 | 9.72万円 | 管理費・共益費 | 1.28万円 |
| 敷金/保証金 | なし / - | 礼金/償却・敷引 | 1ヶ月 / - |
| 更新料 | 1ヶ月 | ||
| その他費用 |
TFDclub:20,000円 鍵交換費用:27,500円 室内清掃費用:55,000円 |
||
| 所在地 | 東京都板橋区小茂根3丁目15-7 | ||
| 交通 | |||
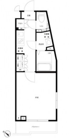
| 間取り | 1K | 間取り内訳 |
洋室 7.5 畳 K 2.5 畳 |
| 専有面積 | 27.32m² | バルコニー面積 | |
| 築年月(築年数) | 2019年03月(築6年) | 方位 | 南西 |
| 建物構造 | RC(鉄筋コンクリート) | 所在階/階建 | 4階/5階建 |
| 総戸数 | 35戸 | 駐車場 | |
| 保険料 | 要 18,000円 2年 | 契約期間 | 2年間 |
| 現況(予定年月) | 2026年05月上旬 | ||
| 管理 | |||
| 設備・条件 | 2階以上、角部屋、システムキッチン、バス・トイレ別、温水洗浄便座、浴室乾燥機、室内洗濯機置き場、フローリング、エアコン、バルコニー、分譲賃貸、敷金なし、BSアンテナ、CSアンテナ、光ファイバー、オートロック、TVドアホン、防犯カメラ、宅配ボックス、駐輪場、エレベータ、都市ガス | ||
| 備考 | お車でご案内します。お気軽にお問い合わせ下さい。 | ||
| 周辺施設 |
コンビニ距離86m、スーパー距離545m、病院距離565m |
||
| 物件番号 | 994620 | 取引態様 | 仲介 |
| 情報更新日 | 2026年02月22日 | ||
| 物件番号 | |||
敷金・礼金・家賃・入居時期時期など、何でもご相談ください!
3路線3駅利用可の板橋エリアでお部屋探し♪
ハウス・トゥ・ハウス板橋東口店で元気にお待ちしております!







