パークアクシス西巣鴨1302 13階 | 2LDK | 25.4万円
ペット相談可♪安心のオートロック付き!便利な宅配ボックス!
| 賃料 | 25.4万円 | 管理費・共益費 | 1.2万円 |
|---|---|---|---|
| 敷金/礼金 | 1ヶ月 / 1ヶ月 | 専有面積 | 53.25m² |
| 間取り | 2LDK | 階建 | 13階/13階建 |
パークアクシス西巣鴨1302の詳細
| 物件種別 | マンション | ||
|---|---|---|---|
| 賃料 | 25.4万円 | 管理費・共益費 | 1.2万円 |
| 敷金/保証金 | 1ヶ月 / - | 礼金/償却・敷引 | 1ヶ月 / - |
| 更新料 | 1ヶ月 | ||
| その他費用 |
鍵交換費用:16,500円 室内清掃費用:99,577円 |
||
| 所在地 | 東京都北区滝野川7丁目46-2 | ||
| 交通 | |||
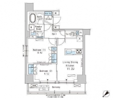
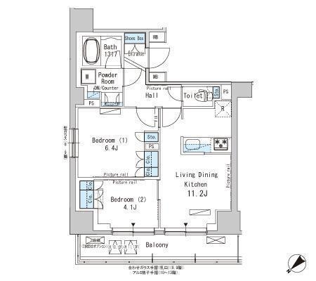
| 間取り | 2LDK | 間取り内訳 |
LDK 11.2 畳 洋室 6.4 畳 洋室 4.1 畳 |
| 専有面積 | 53.25m² | バルコニー面積 | |
| 築年月(築年数) | 2012年01月(築14年) | 方位 | 北西 |
| 建物構造 | RC(鉄筋コンクリート) | 所在階/階建 | 13階/13階建 |
| 総戸数 | - | 駐車場 | |
| 保険料 | 要 | 契約期間 | 2年間 |
| 現況(予定年月) | 2026年04月下旬 | ||
| 管理 | |||
| 設備・条件 | 2階以上、最上階、システムキッチン、カウンターキッチン、バス・トイレ別、浴室乾燥機、追い焚き、室内洗濯機置き場、エアコン、バルコニー、保証人不要、ペット相談、2人入居相談、BSアンテナ、CSアンテナ、CATV、オートロック、防犯カメラ、宅配ボックス、駐輪場、エレベータ | ||
| 備考 | 口座引落料220円(月額) 1年未満解約の場合総賃料の1ヶ月分短期解約違約金あり。 ペット飼育相談可能:小型犬または猫2匹まで/敷金1ヶ月積み増し。 駐輪場:1住戸1台まで/ステッカー発行手数料2200円。 | ||
| 周辺施設 |
コンビニ距離127m、スーパー距離310m、病院距離1,354m |
||
| 物件番号 | 1003339 | 取引態様 | 仲介 |
| 情報更新日 | 2026年03月14日 | ||
| 物件番号 | |||
敷金・礼金・家賃・入居時期時期など、何でもご相談ください!
JR山手線・巣鴨駅から徒歩1分!
ハウス・トゥ・ハウス巣鴨店で元気にお待ちしております!







