ミュージション西台407 2階 | 1K | 11.8万円
楽器演奏推奨デザイナーズマンション♪インターネット無料♪
| 賃料 | 11.8万円 | 管理費・共益費 | 0.6万円 |
|---|---|---|---|
| 敷金/礼金 | 1ヶ月 / 1ヶ月 | 専有面積 | 27.80m² |
| 間取り | 1K | 階建 | 2階/4階建 |
ミュージション西台407の詳細
| 物件種別 | マンション | ||
|---|---|---|---|
| 賃料 | 11.8万円 | 管理費・共益費 | 0.6万円 |
| 敷金/保証金 | 1ヶ月 / - | 礼金/償却・敷引 | 1ヶ月 / - |
| 更新料 | 1ヶ月 | ||
| その他費用 |
24時間緊急対応サービス利用料(2年毎):15,000円 MUSISION入居者様専用ポータル利用料(2年毎):26,400円 鍵交換費用:36,000円 |
||
| 所在地 | 東京都板橋区坂下3丁目29-17 | ||
| 交通 | |||
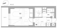
| 間取り | 1K | 間取り内訳 |
洋室 8.6 畳 |
| 専有面積 | 27.80m² | バルコニー面積 | |
| 築年月(築年数) | 2013年03月(築13年) | 方位 | 北 |
| 建物構造 | RC(鉄筋コンクリート) | 所在階/階建 | 2階/4階建 |
| 総戸数 | - | 駐車場 | 無 |
| 保険料 | 要 | 契約期間 | 2年間 |
| 現況(予定年月) | 2026年04月下旬 | ||
| 管理 | |||
| 設備・条件 | 2階以上、システムキッチン、バス・トイレ別、温水洗浄便座、浴室乾燥機、室内洗濯機置き場、フローリング、エアコン、バルコニー、保証人不要、楽器相談、2人入居相談、インターネット対応、オートロック、TVドアホン、宅配ボックス、駐輪場、エレベータ、都市ガス、デザイナーズ | ||
| 備考 | ◆遮音性能D-70 ◆音楽教室利用可能 ◆ピアノ搬入エレベーター(C7サイズまで搬入可能) ◆解約予告2ヶ月前 ◆禁煙 | ||
| 周辺施設 |
コンビニ距離284m、スーパー距離533m |
||
| 物件番号 | 1000399 | 取引態様 | 仲介 |
| 情報更新日 | 2026年03月08日 | ||
| 物件番号 | |||
敷金・礼金・家賃・入居時期時期など、何でもご相談ください!
JR山手線・巣鴨駅から徒歩1分!
ハウス・トゥ・ハウス巣鴨店で元気にお待ちしております!







