パークアクシス文京ステージ401 4階 | 1LDK | 19.9万円
お車でご案内いたします。お気軽にお問い合わせください。
| 賃料 | 19.9万円 | 管理費・共益費 | 1万円 |
|---|---|---|---|
| 敷金/礼金 | 1ヶ月 / 1ヶ月 | 専有面積 | 40.32m² |
| 間取り | 1LDK | 階建 | 4階/11階建 |
パークアクシス文京ステージ401の詳細
| 物件種別 | マンション | ||
|---|---|---|---|
| 賃料 | 19.9万円 | 管理費・共益費 | 1万円 |
| 敷金/保証金 | 1ヶ月 / - | 礼金/償却・敷引 | 1ヶ月 / - |
| 更新料 | 1ヶ月 | ||
| その他費用 |
鍵交換費用:16,500円 室内清掃費用:75,398円 |
||
| 所在地 | 東京都文京区水道2丁目4-12 | ||
| 交通 | |||
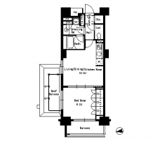
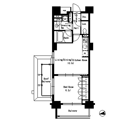
| 間取り | 1LDK | 間取り内訳 |
LDK 10 畳 1 室 洋室 6.2 畳 1 室 |
| 専有面積 | 40.32m² | バルコニー面積 | |
| 築年月(築年数) | 2005年09月(築20年) | 方位 | 西 |
| 建物構造 | RC(鉄筋コンクリート) | 所在階/階建 | 4階/11階建 |
| 総戸数 | - | 駐車場 | 無 |
| 保険料 | 要 | 契約期間 | 2年間 |
| 現況(予定年月) | 2026年03月下旬 | ||
| 管理 | |||
| 設備・条件 | 2階以上、システムキッチン、バス・トイレ別、浴室乾燥機、追い焚き、室内洗濯機置き場、エアコン、バルコニー、ペット相談、楽器相談、インターネット対応、BSアンテナ、CSアンテナ、CATV、オートロック、TVドアホン、宅配ボックス、駐輪場、エレベータ | ||
| 備考 | 口座振替事務手数料110円(月額) ◆1年未満の解約時短期解約違約金あり ◆ペット飼育可:小型犬2匹まで/猫不可/敷金1ヶ月積み増し ◆ピアノ相談可(グランドピアノ不可) | ||
| 周辺施設 |
コンビニ距離324m、スーパー距離300m、病院距離762m |
||
| 物件番号 | 988011 | 取引態様 | 仲介 |
| 情報更新日 | 2026年02月09日 | ||
| 物件番号 | |||
敷金・礼金・家賃・入居時期時期など、何でもご相談ください!
JR山手線・巣鴨駅から徒歩1分!
ハウス・トゥ・ハウス巣鴨店で元気にお待ちしております!







