アークプラザ荒川公園1001 10階 | 1DK | 12万円
ペット相談可♪オール電化♪人気の分譲賃貸マンション♪
| 賃料 | 12万円 | 管理費・共益費 | 1.2万円 |
|---|---|---|---|
| 敷金/礼金 | 1ヶ月 / 1ヶ月 | 専有面積 | 33.17m² |
| 間取り | 1DK | 階建 | 10階/15階建 |
アークプラザ荒川公園1001の詳細
| 物件種別 | マンション | ||
|---|---|---|---|
| 賃料 | 12万円 | 管理費・共益費 | 1.2万円 |
| 敷金/保証金 | 1ヶ月 / - | 礼金/償却・敷引 | 1ヶ月 / - |
| 更新料 | 1ヶ月 | ||
| その他費用 |
リーヴサポート24/2年:19,800円 鍵交換費用:33,000円 室内清掃費用:57,200円 |
||
| 所在地 | 東京都荒川区荒川1丁目32-6 | ||
| 交通 | |||
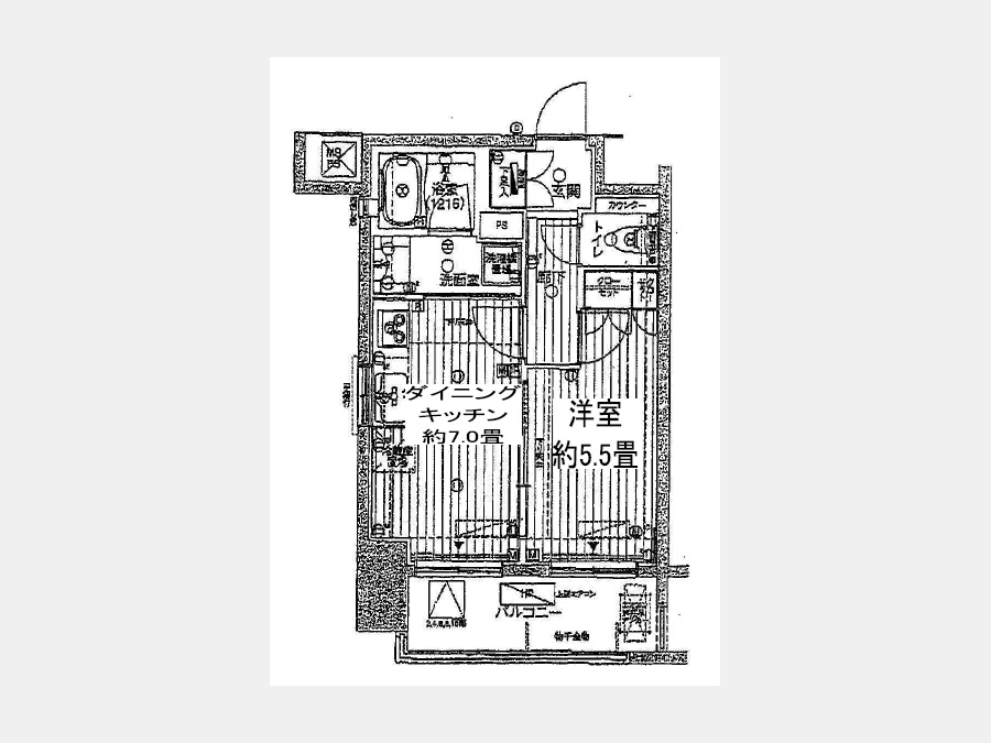
| 間取り | 1DK | 間取り内訳 |
DK 7 畳 洋室 5.5 畳 |
| 専有面積 | 33.17m² | バルコニー面積 | |
| 築年月(築年数) | 2007年11月(築18年) | 方位 | 南 |
| 建物構造 | RC(鉄筋コンクリート) | 所在階/階建 | 10階/15階建 |
| 総戸数 | - | 駐車場 | |
| 保険料 | 要 | 契約期間 | 2年間 |
| 現況(予定年月) | 即時 | ||
| 管理 | |||
| 設備・条件 | 2階以上、角部屋、南向き部屋、システムキッチン、バス・トイレ別、温水洗浄便座、浴室乾燥機、室内洗濯機置き場、エアコン、バルコニー、即入居可、ペット相談、オール電化、オートロック、TVドアホン、宅配ボックス、駐輪場、エレベータ | ||
| 備考 | ペット飼育可:小型犬1匹のみ※敷金1ヶ月積増、償却2ヶ月+税。 更新事務手数料5500円。 | ||
| 周辺施設 |
コンビニ距離236m、スーパー距離349m、病院距離1,595m |
||
| 物件番号 | 988413 | 取引態様 | 仲介 |
| 情報更新日 | 2026年02月09日 | ||
| 物件番号 | |||
敷金・礼金・家賃・入居時期時期など、何でもご相談ください!
JR山手線・巣鴨駅から徒歩1分!
ハウス・トゥ・ハウス巣鴨店で元気にお待ちしております!







