パレス本駒込402 4階 | 1R | 8.8万円
文京区近辺での新居ならご好評の物件「パレス本駒込」はいかがでしょうか。駒込警察署 動坂交番が近く(徒
| 賃料 | 8.8万円 | 管理費・共益費 | なし |
|---|---|---|---|
| 敷金/礼金 | 1ヶ月 / 1ヶ月 | 専有面積 | 29.16m² |
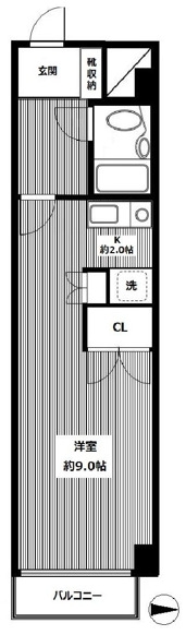
| 間取り | 1R | 階建 | 4階/11階建 |
パレス本駒込402の詳細
| 物件種別 | マンション | ||
|---|---|---|---|
| 賃料 | 8.8万円 | 管理費・共益費 | なし |
| 敷金/保証金 | 1ヶ月 / - | 礼金/償却・敷引 | 1ヶ月 / - |
| 更新料 | 1.5ヶ月 | ||
| その他費用 |
安心サポート:16,500円 鍵交換費用:22,000円 |
||
| 所在地 | 東京都文京区本駒込4丁目35-19 | ||
| 交通 | |||
| 間取り | 1R | 間取り内訳 | |
| 専有面積 | 29.16m² | バルコニー面積 | |
| 築年月(築年数) | 1987年11月(築38年) | 方位 | 東 |
| 建物構造 | SRC(鉄骨鉄筋コンクリート) | 所在階/階建 | 4階/11階建 |
| 総戸数 | 44戸 | 駐車場 | |
| 保険料 | 要 20,000円 | 契約期間 | 2年間 |
| 現況(予定年月) | 2026年04月中旬 | ||
| 管理 | |||
| 設備・条件 | 2階以上、フローリング、エアコン、バルコニー、オートロック | ||
| 備考 | ■現況と図面が異なる場合は現況を優先いたします。 | ||
| 周辺施設 |
コンビニ距離68m、スーパー距離491m、病院距離402m |
||
| 物件番号 | 1000846 | 取引態様 | 仲介 |
| 情報更新日 | 2026年03月12日 | ||
| 物件番号 | |||
敷金・礼金・家賃・入居時期時期など、何でもご相談ください!
山手線・東京メトロ南北線沿線でのお部屋探しなら
当店にお任せください!
ハウス・トゥ・ハウス駒込店で元気にお待ちしております!







