DIPS大山幸町105 1階 | 1LDK | 13.9万円
セキュリティ面は、TVインターホン・オートロックなど充実しているので安心して生活できます。システムキ
| 賃料 | 13.9万円 | 管理費・共益費 | 1.5万円 |
|---|---|---|---|
| 敷金/礼金 | なし / 1ヶ月 | 専有面積 | 35.56m² |
| 間取り | 1LDK | 階建 | 1階/5階建 |
DIPS大山幸町105の詳細
| 物件種別 | マンション | ||
|---|---|---|---|
| 賃料 | 13.9万円 | 管理費・共益費 | 1.5万円 |
| 敷金/保証金 | なし / 1ヶ月 | 礼金/償却・敷引 | 1ヶ月 / - |
| 更新料 | 1.5ヶ月 | ||
| その他費用 |
くらしーど24:16,500円 鍵交換費用:24,200円 室内清掃費用:69,300円 |
||
| 所在地 | 東京都板橋区幸町3-5 | ||
| 交通 | |||
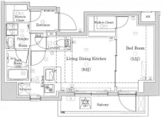
| 間取り | 1LDK | 間取り内訳 |
LDK 8 畳 洋室 5.5 畳 |
| 専有面積 | 35.56m² | バルコニー面積 | |
| 築年月(築年数) | 2020年03月(築5年) | 方位 | 北 |
| 建物構造 | RC(鉄筋コンクリート) | 所在階/階建 | 1階/5階建 |
| 総戸数 | 33戸 | 駐車場 | |
| 保険料 | 要 18,000円 2年 | 契約期間 | 2年間 |
| 現況(予定年月) | 2026年02月下旬 | ||
| 管理 | |||
| 設備・条件 | 1階、システムキッチン、バス・トイレ別、温水洗浄便座、浴室乾燥機、追い焚き、室内洗濯機置き場、フローリング、エアコン、ウォークインクローゼット、バルコニー、分譲賃貸、2人入居相談、インターネット対応、オートロック、TVドアホン、宅配ボックス、エレベータ、都市ガス | ||
| 備考 | エアコンクリーニング費用:14300円/台。1年未満の解約は賃料1ヶ月分の違約金あり。お車でご案内します。お気軽にお問い合わせ下さい。 | ||
| 周辺施設 |
コンビニ距離271m、スーパー距離177m、病院距離443m |
||
| 物件番号 | 966049 | 取引態様 | 仲介 |
| 情報更新日 | 2026年02月17日 | ||
| 物件番号 | |||
敷金・礼金・家賃・入居時期時期など、何でもご相談ください!
池袋まで埼京線で5分というアクセス利便性が魅力★
ハウス・トゥ・ハウス板橋店で元気にお待ちしております!







