セジョリ板橋坂下Ⅱ408 4階 | 1DK | 9.6万円
歩いて徒歩2分の場所にビッグ・エー 板橋坂下店があるのもポイント。
| 賃料 | 9.6万円 | 管理費・共益費 | 1.3万円 |
|---|---|---|---|
| 敷金/礼金 | なし / 1ヶ月 | 専有面積 | 25.81m² |
| 間取り | 1DK | 階建 | 4階/5階建 |
セジョリ板橋坂下Ⅱ408の詳細
| 物件種別 | マンション | ||
|---|---|---|---|
| 賃料 | 9.6万円 | 管理費・共益費 | 1.3万円 |
| 敷金/保証金 | なし / - | 礼金/償却・敷引 | 1ヶ月 / - |
| 更新料 | 1ヶ月 | ||
| その他費用 | 鍵交換費用:22,000円 | ||
| 所在地 | 東京都板橋区坂下2丁目14-18 | ||
| 交通 | |||
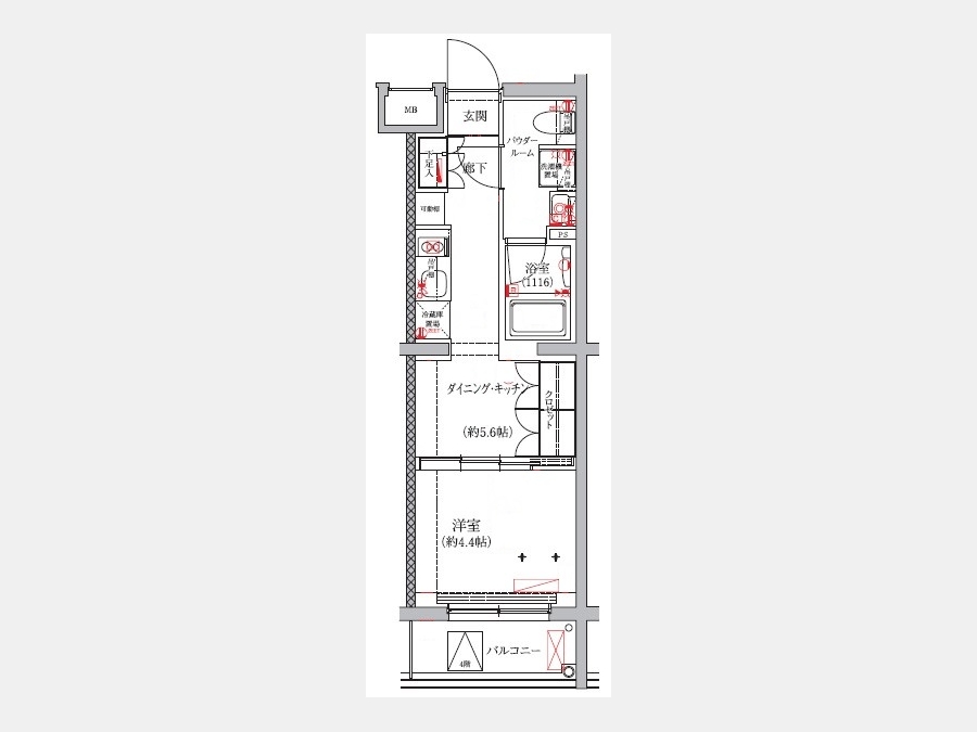
| 間取り | 1DK | 間取り内訳 |
洋室 4.4 畳 DK 5.6 畳 |
| 専有面積 | 25.81m² | バルコニー面積 | |
| 築年月(築年数) | 2021年05月(築4年) | 方位 | 東 |
| 建物構造 | RC(鉄筋コンクリート) | 所在階/階建 | 4階/5階建 |
| 総戸数 | 50戸 | 駐車場 | |
| 保険料 | 要 20,000円 2年 | 契約期間 | 2年間 |
| 現況(予定年月) | 2026年04月中旬 | ||
| 管理 | |||
| 設備・条件 | 2階以上、システムキッチン、バス・トイレ別、温水洗浄便座、浴室乾燥機、追い焚き、室内洗濯機置き場、フローリング、エアコン、バルコニー、敷金なし、保証人不要、BSアンテナ、CSアンテナ、CATV、オートロック、TVドアホン、宅配ボックス、バイク置き場、駐輪場、エレベータ、都市ガス、デザイナーズ | ||
| 備考 | ペット飼育時 敷金1ヶ月追加(償却)※犬・猫いずれか1匹(小型犬50cm以下、10kg以下) | ||
| 周辺施設 |
コンビニ距離147m、スーパー距離135m |
||
| 物件番号 | 991740 | 取引態様 | 仲介 |
| 情報更新日 | 2026年02月16日 | ||
| 物件番号 | |||
敷金・礼金・家賃・入居時期時期など、何でもご相談ください!
JR山手線・巣鴨駅から徒歩1分!
ハウス・トゥ・ハウス巣鴨店で元気にお待ちしております!







