パークノート東日暮里202 1階 | 1LDK | 14万円
賃貸住宅情報をお探しの際には、ぜひお気軽に当社までご連絡下さい。しっかりとサポート致します。
| 賃料 | 14万円 | 管理費・共益費 | 1.3万円 |
|---|---|---|---|
| 敷金/礼金 | なし / 1ヶ月 | 専有面積 | 43.09m² |
| 間取り | 1LDK | 階建 | 1階/3階建 |
360度パノラマ
パークノート東日暮里202の詳細
| 物件種別 | アパート | ||
|---|---|---|---|
| 賃料 | 14万円 | 管理費・共益費 | 1.3万円 |
| 敷金/保証金 | なし / - | 礼金/償却・敷引 | 1ヶ月 / - |
| 更新料 | 1ヶ月 | ||
| その他費用 |
24時間サポート:16,500円 書類作成費用:11,000円 鍵交換費用:33,000円 |
||
| 所在地 | 東京都荒川区東日暮里3丁目31-13 | ||
| 交通 | |||
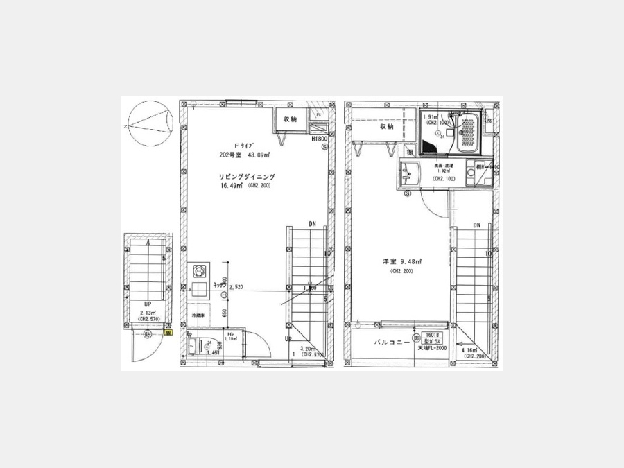
| 間取り | 1LDK | 間取り内訳 |
洋室 LDK |
| 専有面積 | 43.09m² | バルコニー面積 | |
| 築年月(築年数) | 2018年01月(築8年) | 方位 | 西 |
| 建物構造 | 木造 | 所在階/階建 | 1階/3階建 |
| 総戸数 | 8戸 | 駐車場 | |
| 保険料 | 要 18,000円 2年 | 契約期間 | 2年間 |
| 現況(予定年月) | 2026年04月中旬 | ||
| 管理 | |||
| 設備・条件 | バス・トイレ別、温水洗浄便座、浴室乾燥機、フローリング、メゾネット、バルコニー、敷金なし、360°パノラマ有り、保証人不要、1階、室内洗濯機置き場、エアコン、ペット不可、インターネット対応、プロパンガス | ||
| 備考 | 1年未満の解約は総賃料1ヶ月分の短期解約違約金有。 更新事務手数料、新賃料の0.5ヶ月分。 退去時クリーニング費用負担有。 | ||
| 周辺施設 |
コンビニ距離78m、スーパー距離77m、病院距離409m |
||
| 物件番号 | 995696 | 取引態様 | 仲介 |
| 情報更新日 | 2026年02月25日 | ||
| 物件番号 | |||
敷金・礼金・家賃・入居時期時期など、何でもご相談ください!
JR山手線・巣鴨駅から徒歩1分!
ハウス・トゥ・ハウス巣鴨店で元気にお待ちしております!







