メインステージ板橋蓮根Ⅱ402 4階 | 1K | 9.1万円
ペット相談可♪オートロック・防犯カメラで安心のセキュリティ
| 賃料 | 9.1万円 | 管理費・共益費 | 1.5万円 |
|---|---|---|---|
| 敷金/礼金 | なし / 1ヶ月 | 専有面積 | 26.07m² |
| 間取り | 1K | 階建 | 4階/5階建 |
メインステージ板橋蓮根Ⅱ402の詳細
| 物件種別 | マンション | ||
|---|---|---|---|
| 賃料 | 9.1万円 | 管理費・共益費 | 1.5万円 |
| 敷金/保証金 | なし / - | 礼金/償却・敷引 | 1ヶ月 / - |
| 更新料 | 1.5ヶ月 | ||
| その他費用 |
AMLクラブサポート費用:16,500円 鍵交換費用:29,700円 室内清掃費用:49,500円 |
||
| 所在地 | 東京都板橋区坂下3丁目5-9 | ||
| 交通 | |||
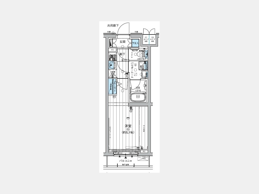
| 間取り | 1K | 間取り内訳 |
洋室 8.1 畳 |
| 専有面積 | 26.07m² | バルコニー面積 | |
| 築年月(築年数) | 2015年11月(築10年) | 方位 | 南 |
| 建物構造 | RC(鉄筋コンクリート) | 所在階/階建 | 4階/5階建 |
| 総戸数 | 110戸 | 駐車場 | 空無 |
| 保険料 | 要 15,000円 2年 | 契約期間 | 2年間 |
| 現況(予定年月) | 2026年03月中旬 | ||
| 管理 | |||
| 設備・条件 | 2階以上、南向き部屋、システムキッチン、バス・トイレ別、温水洗浄便座、浴室乾燥機、室内洗濯機置き場、エアコン、バルコニー、分譲賃貸、敷金なし、保証人不要、ペット相談、2人入居相談、BSアンテナ、CSアンテナ、光ファイバー、オートロック、TVドアホン、防犯カメラ、宅配ボックス、駐輪場、エレベータ、都市ガス | ||
| 備考 | ペット飼育時:敷金1ヶ月積み増し。 短期解約違約金有(1年未満=1ヶ月、半年未満=2ヶ月)。 エアコンクリーニング費用(1台あたり16500円・退去時請求)。 更新事務手数料2200円。 解約予告50日前。 電力業者・引越し業者指定有。 | ||
| 周辺施設 |
コンビニ距離152m、スーパー距離300m、病院距離1,604m |
||
| 物件番号 | 980201 | 取引態様 | 仲介 |
| 情報更新日 | 2026年01月24日 | ||
| 物件番号 | |||
敷金・礼金・家賃・入居時期時期など、何でもご相談ください!
山手線・京浜東北線の2路線が使える便利な街・田端!
ハウス・トゥ・ハウス田端店で元気にお待ちしております!







