クラッシーコート北大塚601 6階 | 1LDK | 16.8万円
お車でご案内いたします。お気軽にお問い合わせください。
| 賃料 | 16.8万円 | 管理費・共益費 | 1万円 |
|---|---|---|---|
| 敷金/礼金 | 1ヶ月 / なし | 専有面積 | 37.31m² |
| 間取り | 1LDK | 階建 | 6階/6階建 |
クラッシーコート北大塚601の詳細
| 物件種別 | マンション | ||
|---|---|---|---|
| 賃料 | 16.8万円 | 管理費・共益費 | 1万円 |
| 敷金/保証金 | 1ヶ月 / - | 礼金/償却・敷引 | なし / - |
| 更新料 | 1ヶ月 | ||
| その他費用 | 室内清掃費用:49,500円 | ||
| 所在地 | 東京都豊島区北大塚1丁目22-8 | ||
| 交通 | |||
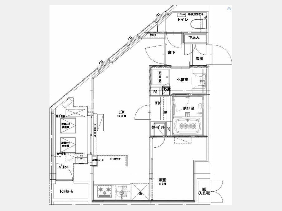
| 間取り | 1LDK | 間取り内訳 |
洋室 4 畳 1 室 LDK 10.3 畳 1 室 |
| 専有面積 | 37.31m² | バルコニー面積 | |
| 築年月(築年数) | 2014年02月(築12年) | 方位 | - |
| 建物構造 | RC(鉄筋コンクリート) | 所在階/階建 | 6階/6階建 |
| 総戸数 | - | 駐車場 | |
| 保険料 | 要 | 契約期間 | 2年間 |
| 現況(予定年月) | 2026年04月上旬 | ||
| 管理 | |||
| 設備・条件 | 2階以上、最上階、システムキッチン、バス・トイレ別、温水洗浄便座、浴室乾燥機、追い焚き、室内洗濯機置き場、フローリング、エアコン、床暖房、バルコニー、礼金なし、保証人不要、BSアンテナ、CSアンテナ、オートロック、TVドアホン、宅配ボックス、エレベータ | ||
| 備考 | ◆退去時クリーニング費用49500円 ◆退去時エアコンクリーニング費用13200円/台 ◆解約予告2か月前 ◆1年未満の解約時総賃料1ヶ月分の違約金あり | ||
| 周辺施設 |
コンビニ距離129m、スーパー距離468m、病院距離293m |
||
| 物件番号 | 953884 | 取引態様 | 仲介 |
| 情報更新日 | 2026年02月10日 | ||
| 物件番号 | |||
敷金・礼金・家賃・入居時期時期など、何でもご相談ください!
歴史と情緒が薫る街・西日暮里でお部屋探し♪
ハウス・トゥ・ハウス西日暮里店で元気にお待ちしております!







