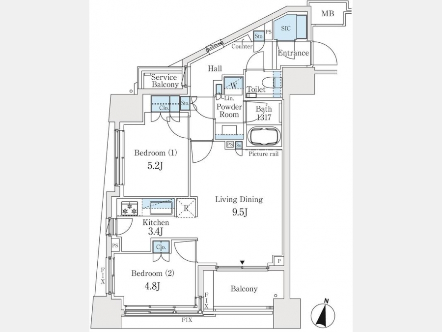
ブランズ文京白山一丁目303 3階 | 2LDK | 33万円
クイーンズ伊勢丹小石川店まで273mです。文京区エリアや都営三田線春日付近での住まい選びは、当社にお
| 賃料 | 33万円 | 管理費・共益費 | なし |
|---|---|---|---|
| 敷金/礼金 | 1ヶ月 / 1ヶ月 | 専有面積 | 56.53m² |
| 間取り | 2LDK | 階建 | 3階/13階建 |
ブランズ文京白山一丁目303の詳細
| 物件種別 | マンション | ||
|---|---|---|---|
| 賃料 | 33万円 | 管理費・共益費 | なし |
| 敷金/保証金 | 1ヶ月 / - | 礼金/償却・敷引 | 1ヶ月 / - |
| 更新料 | - | ||
| その他費用 | 鍵交換費用:33,000円 | ||
| 所在地 | 東京都文京区白山1丁目1-1 | ||
| 交通 | |||
| 間取り | 2LDK | 間取り内訳 | |
| 専有面積 | 56.53m² | バルコニー面積 | |
| 築年月(築年数) | 2020年11月(築5年) | 方位 | 南 |
| 建物構造 | RC(鉄筋コンクリート) | 所在階/階建 | 3階/13階建 |
| 総戸数 | - | 駐車場 | 無 |
| 保険料 | 要 | 契約期間 | 2年間 |
| 現況(予定年月) | 2026年03月中旬 | ||
| 管理 | |||
| 設備・条件 | 2階以上、南向き部屋、システムキッチン、バス・トイレ別、温水洗浄便座、浴室乾燥機、追い焚き、室内洗濯機置き場、フローリング、エアコン、床暖房、バルコニー、分譲賃貸、オートロック、宅配ボックス、バイク置き場、エレベータ | ||
| 備考 | ■定期借家契約 ■1年未満解約違約金有 ■法人契約は礼金1ヶ月積増 ■エアコンクリーニング費借主負担 | ||
| 周辺施設 |
コンビニ距離319m、スーパー距離273m、病院距離638m |
||
| 物件番号 | 979797 | 取引態様 | 仲介 |
| 情報更新日 | 2026年01月21日 | ||
| 物件番号 | |||
敷金・礼金・家賃・入居時期時期など、何でもご相談ください!
山手線・東京メトロ南北線沿線でのお部屋探しなら
当店にお任せください!
ハウス・トゥ・ハウス駒込店で元気にお待ちしております!







