スカイコート池袋第2702 7階 | 1R | 6.94万円
お車でご案内いたします。お気軽にお問い合わせください。
| 賃料 | 6.94万円 | 管理費・共益費 | 0.66万円 |
|---|---|---|---|
| 敷金/礼金 | 1ヶ月 / 1ヶ月 | 専有面積 | 22.00m² |
| 間取り | 1R | 階建 | 7階/14階建 |
スカイコート池袋第2702の詳細
| 物件種別 | マンション | ||
|---|---|---|---|
| 賃料 | 6.94万円 | 管理費・共益費 | 0.66万円 |
| 敷金/保証金 | 1ヶ月 / - | 礼金/償却・敷引 | 1ヶ月 / - |
| 更新料 | 1.5ヶ月 | ||
| その他費用 |
消火剤:5,500円 鍵交換費用:22,000円 |
||
| 所在地 | 東京都豊島区東池袋5丁目7-6 | ||
| 交通 | |||
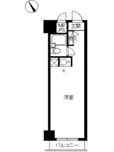
| 間取り | 1R | 間取り内訳 |
洋室 8 畳 1 室 |
| 専有面積 | 22.00m² | バルコニー面積 | |
| 築年月(築年数) | 1987年01月(築39年) | 方位 | 南西 |
| 建物構造 | RC(鉄筋コンクリート) | 所在階/階建 | 7階/14階建 |
| 総戸数 | - | 駐車場 | 無 |
| 保険料 | 要 | 契約期間 | 2年間 |
| 現況(予定年月) | 2025年11月中旬 | ||
| 管理 | |||
| 設備・条件 | 2階以上、エアコン、バルコニー、分譲賃貸、保証人不要、オートロック、駐輪場、エレベータ、都市ガス | ||
| 備考 | 少額短期保険1000円(月額) ◆1年未満の解約時は賃料等1ヶ月分の短期解約違約金あり◆退去時に解約事務手数料13200円(税込) | ||
| 周辺施設 |
コンビニ距離45m、スーパー距離152m、病院距離569m |
||
| 物件番号 | 936282 | 取引態様 | 仲介 |
| 情報更新日 | 2025年12月25日 | ||
| 物件番号 | |||
敷金・礼金・家賃・入居時期時期など、何でもご相談ください!
JR山手線・巣鴨駅から徒歩1分!
ハウス・トゥ・ハウス巣鴨店で元気にお待ちしております!







