ワコー第3マンション606 8階 | 1K | 8.9万円
賃貸住宅情報をお探しの際には、ぜひお気軽に当社までご連絡下さい。しっかりとサポート致します。
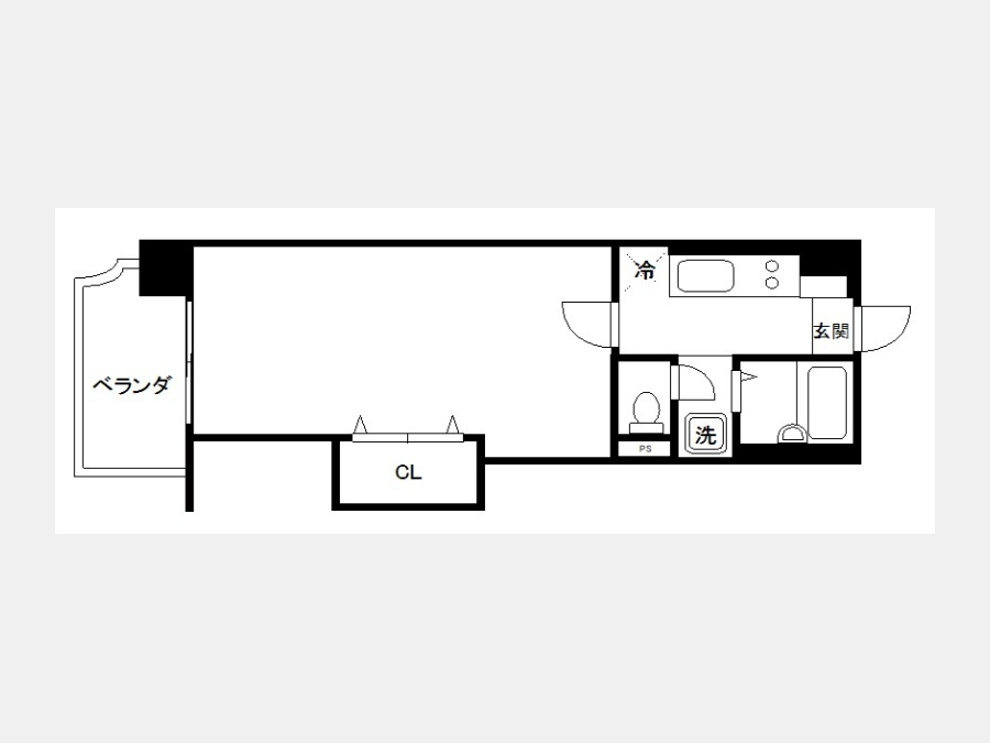
| 賃料 | 8.9万円 | 管理費・共益費 | 0.3万円 |
|---|---|---|---|
| 敷金/礼金 | 1ヶ月 / なし | 専有面積 | 26.04m² |
| 間取り | 1K | 階建 | 8階/13階建 |
ワコー第3マンション606の詳細
| 物件種別 | マンション | ||
|---|---|---|---|
| 賃料 | 8.9万円 | 管理費・共益費 | 0.3万円 |
| 敷金/保証金 | 1ヶ月 / - | 礼金/償却・敷引 | なし / - |
| 更新料 | - | ||
| その他費用 | 鍵交換費用:35,200円 | ||
| 所在地 | 東京都板橋区小豆沢3丁目7-30 | ||
| 交通 | |||
| 間取り | 1K | 間取り内訳 |
洋室 K |
| 専有面積 | 26.04m² | バルコニー面積 | |
| 築年月(築年数) | 1975年03月(築50年) | 方位 | 南 |
| 建物構造 | SRC(鉄骨鉄筋コンクリート) | 所在階/階建 | 8階/13階建 |
| 総戸数 | - | 駐車場 | 空有1台/-22,000円 |
| 保険料 | 要 22,000円 2年 | 契約期間 | 2年間 |
| 現況(予定年月) | 即時 | ||
| 管理 | |||
| 設備・条件 | 2階以上、南向き部屋、システムキッチン、バス・トイレ別、温水洗浄便座、室内洗濯機置き場、エアコン、バルコニー、即入居可、礼金なし、光ファイバー、オートロック、TVドアホン、防犯カメラ、宅配ボックス、バイク置き場、駐輪場、エレベータ、都市ガス | ||
| 備考 | コンシェルジュ241100円(月額) 定期借家契約2年(再契約料:新賃料1.05ヶ月分)。 原則、連帯保証人または緊急連絡先・保証会社併用。 2年未満の解約時、賃料1ヶ月分の違約金あり。 夜間オートロック(22時から翌7時) | ||
| 周辺施設 |
コンビニ距離315m、スーパー距離596m、病院距離727m |
||
| 物件番号 | 980503 | 取引態様 | 仲介 |
| 情報更新日 | 2026年01月24日 | ||
| 物件番号 | |||
敷金・礼金・家賃・入居時期時期など、何でもご相談ください!
3路線3駅利用可の板橋エリアでお部屋探し♪
ハウス・トゥ・ハウス板橋東口店で元気にお待ちしております!







