コンフォリア東池袋WEST1101 11階 | 1SLDK | 30万円
お車でご案内いたします。お気軽にお問い合わせください。
| 賃料 | 30万円 | 管理費・共益費 | 1.4万円 |
|---|---|---|---|
| 敷金/礼金 | 1ヶ月 / なし | 専有面積 | 60.45m² |
| 間取り | 1SLDK | 階建 | 11階/13階建 |
コンフォリア東池袋WEST1101の詳細
| 物件種別 | マンション | ||
|---|---|---|---|
| 賃料 | 30万円 | 管理費・共益費 | 1.4万円 |
| 敷金/保証金 | 1ヶ月 / - | 礼金/償却・敷引 | なし / - |
| 更新料 | 1ヶ月 | ||
| その他費用 |
鍵交換費用:33,000円 室内清掃費用:83,600円 |
||
| 所在地 | 東京都豊島区東池袋3丁目22-21 | ||
| 交通 | |||
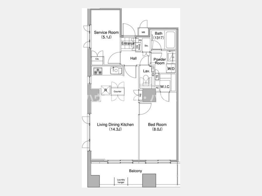
| 間取り | 1SLDK | 間取り内訳 |
LDK 14.3 畳 1 室 洋室 8 畳 1 室 S 5.1 畳 1 室 |
| 専有面積 | 60.45m² | バルコニー面積 | |
| 築年月(築年数) | 2009年06月(築16年) | 方位 | - |
| 建物構造 | RC(鉄筋コンクリート) | 所在階/階建 | 11階/13階建 |
| 総戸数 | 155戸 | 駐車場 | |
| 保険料 | 要 16,550円 2年 | 契約期間 | 2年間 |
| 現況(予定年月) | 即時 | ||
| 管理 | |||
| 設備・条件 | 2階以上、システムキッチン、バス・トイレ別、温水洗浄便座、浴室乾燥機、追い焚き、フローリング、エアコン、バルコニー、即入居可、礼金なし、保証人不要、ペット相談、インターネット対応、BSアンテナ、CSアンテナ、CATV、オートロック、TVドアホン、防犯カメラ、宅配ボックス、バイク置き場、駐輪場、エレベータ | ||
| 備考 | ■1年以内解約時違約金有 ■ペット飼育:小型犬、猫可 小型犬1匹か猫2匹迄敷金2ヶ月 ■【大規模修繕工事】本物件において、下記工期にて外壁・バルコニー等共用部の大規模修繕工事を実施する予定であり、その工事に伴い振動・騒音・粉塵・臭気等が発生する可能性がございます。予定工期:2025年10月1日~2026年4月3日(予定) | ||
| 周辺施設 |
コンビニ距離8m、スーパー距離68m、病院距離987m |
||
| 物件番号 | 985258 | 取引態様 | 仲介 |
| 情報更新日 | 2026年02月05日 | ||
| 物件番号 | |||
敷金・礼金・家賃・入居時期時期など、何でもご相談ください!
JR山手線・巣鴨駅から徒歩1分!
ハウス・トゥ・ハウス巣鴨店で元気にお待ちしております!







