パストラル成増303 3階 | 1K | 8.05万円
日々の暮らしに便利なmaruetsu(マルエツ) 成増南口店(スーパー)まで326mです。室内設備
| 賃料 | 8.05万円 | 管理費・共益費 | 0.6万円 |
|---|---|---|---|
| 敷金/礼金 | なし / 1ヶ月 | 専有面積 | 21.27m² |
| 間取り | 1K | 階建 | 3階/5階建 |
パストラル成増303の詳細
| 物件種別 | マンション | ||
|---|---|---|---|
| 賃料 | 8.05万円 | 管理費・共益費 | 0.6万円 |
| 敷金/保証金 | なし / - | 礼金/償却・敷引 | 1ヶ月 / - |
| 更新料 | 1.5ヶ月 | ||
| その他費用 | 安心入居サポート:19,800円 | ||
| 所在地 | 東京都板橋区成増1丁目26-8 | ||
| 交通 | |||
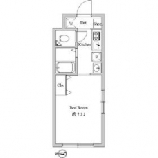
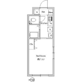
| 間取り | 1K | 間取り内訳 |
洋室 7.3 畳 1 室 |
| 専有面積 | 21.27m² | バルコニー面積 | |
| 築年月(築年数) | 2004年03月(築22年) | 方位 | 西 |
| 建物構造 | RC(鉄筋コンクリート) | 所在階/階建 | 3階/5階建 |
| 総戸数 | 13戸 | 駐車場 | |
| 保険料 | 要 19,000円 2年 | 契約期間 | 2年間 |
| 現況(予定年月) | 2026年04月上旬 | ||
| 管理 | |||
| 設備・条件 | 2階以上、角部屋、システムキッチン、バス・トイレ別、浴室乾燥機、室内洗濯機置き場、フローリング、エアコン、バルコニー、分譲賃貸、敷金なし、インターネット対応、オートロック、防犯カメラ、駐輪場、エレベータ、都市ガス | ||
| 備考 | 駐輪場有※空き状況要確認。クリーニング費用は退去時に借主負担。オートロックと玄関の鍵で二重にロックできるので防犯対策として優れています。こちらは1Kの物件です。板橋区エリアや有楽町線地下鉄成増付近までのお引っ越しをご検討されているなら、お問い合わせやご連絡をお待ちしております。知識が豊富なスタッフがご対応させて頂きます。 | ||
| 周辺施設 |
コンビニ距離82m、スーパー距離59m、病院距離1,841m |
||
| 物件番号 | 998294 | 取引態様 | 仲介 |
| 情報更新日 | 2026年03月03日 | ||
| 物件番号 | |||
敷金・礼金・家賃・入居時期時期など、何でもご相談ください!
池袋まで埼京線で5分というアクセス利便性が魅力★
ハウス・トゥ・ハウス板橋店で元気にお待ちしております!







