ディアレイシャス成増105 1階 | 1K | 9.8万円
便利なスーパー「アコレ 成増1丁目店」まで333mです。共用部には宅配ボックス・ゴミ出し24時間OK
| 賃料 | 9.8万円 | 管理費・共益費 | 0.8万円 |
|---|---|---|---|
| 敷金/礼金 | 1ヶ月 / 1ヶ月 | 専有面積 | 25.62m² |
| 間取り | 1K | 階建 | 1階/4階建 |
ディアレイシャス成増105の詳細
| 物件種別 | マンション | ||
|---|---|---|---|
| 賃料 | 9.8万円 | 管理費・共益費 | 0.8万円 |
| 敷金/保証金 | 1ヶ月 / - | 礼金/償却・敷引 | 1ヶ月 / - |
| 更新料 | 1ヶ月 | ||
| その他費用 |
事務手数料:11,000円 鍵交換費用:38,500円 室内清掃費用:77,000円 |
||
| 所在地 | 東京都板橋区赤塚新町2丁目13-5 | ||
| 交通 | |||
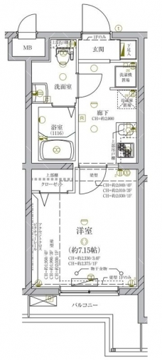
| 間取り | 1K | 間取り内訳 |
洋室 7.1 畳 |
| 専有面積 | 25.62m² | バルコニー面積 | |
| 築年月(築年数) | 2016年05月(築9年) | 方位 | 北西 |
| 建物構造 | RC(鉄筋コンクリート) | 所在階/階建 | 1階/4階建 |
| 総戸数 | 49戸 | 駐車場 | |
| 保険料 | 要 18,000円 2年 | 契約期間 | 2年間 |
| 現況(予定年月) | 2026年03月上旬 | ||
| 管理 | |||
| 設備・条件 | 1階、システムキッチン、バス・トイレ別、温水洗浄便座、浴室乾燥機、室内洗濯機置き場、フローリング、エアコン、バルコニー、保証人不要、インターネット対応、BSアンテナ、CSアンテナ、オートロック、TVドアホン、防犯カメラ、宅配ボックス、バイク置き場、駐輪場、エレベータ、都市ガス | ||
| 備考 | フレックシあんしんサポート1100円(月額) 短期解約違約金:1年未満は総賃料の1ヶ月分。退去時クリーニング代:66000円。退去時エアコンクリーニング費用:11000円。駐輪場・バイク置場:要空確認。インターネット無料(ギガプライズ)。指定ライフライン代行業者の利用必須。 | ||
| 周辺施設 |
コンビニ距離74m、スーパー距離221m、病院距離533m |
||
| 物件番号 | 998203 | 取引態様 | 仲介 |
| 情報更新日 | 2026年03月03日 | ||
| 物件番号 | |||
敷金・礼金・家賃・入居時期時期など、何でもご相談ください!
JR山手線・巣鴨駅から徒歩1分!
ハウス・トゥ・ハウス巣鴨店で元気にお待ちしております!







