プライムアーバン本駒込1001 10階 | 1R | 13.1万円
ぜひ一度見ていただきたい、「プライムアーバン本駒込」です。歩いて徒歩2分の場所にまいばすけっと 本
| 賃料 | 13.1万円 | 管理費・共益費 | 1.2万円 |
|---|---|---|---|
| 敷金/礼金 | 1ヶ月 / 1ヶ月 | 専有面積 | 30.92m² |
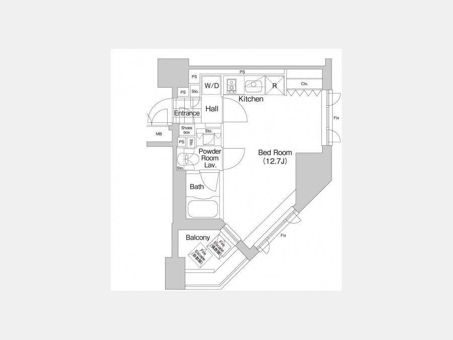
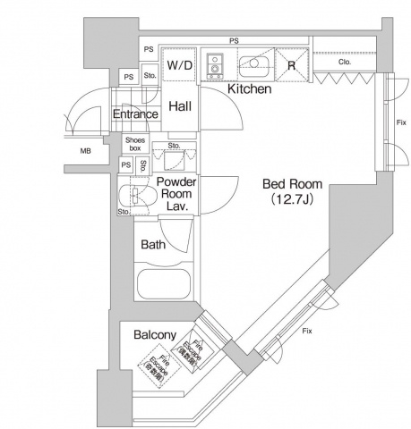
| 間取り | 1R | 階建 | 10階/15階建 |
360度パノラマ
プライムアーバン本駒込1001の詳細
| 物件種別 | マンション | ||
|---|---|---|---|
| 賃料 | 13.1万円 | 管理費・共益費 | 1.2万円 |
| 敷金/保証金 | 1ヶ月 / - | 礼金/償却・敷引 | 1ヶ月 / - |
| 更新料 | 1ヶ月 | ||
| その他費用 | 鍵交換費用:36,300円 | ||
| 所在地 | 東京都文京区本駒込1丁目7-14 | ||
| 交通 | |||
| 間取り | 1R | 間取り内訳 |
洋室 12.7 畳 |
| 専有面積 | 30.92m² | バルコニー面積 | |
| 築年月(築年数) | 2007年02月(築18年) | 方位 | 南東 |
| 建物構造 | RC(鉄筋コンクリート) | 所在階/階建 | 10階/15階建 |
| 総戸数 | 68戸 | 駐車場 | |
| 保険料 | 要 | 契約期間 | 2年間 |
| 現況(予定年月) | 2025年10月中旬 | ||
| 管理 | |||
| 設備・条件 | 2階以上、システムキッチン、バス・トイレ別、温水洗浄便座、浴室乾燥機、室内洗濯機置き場、フローリング、エアコン、バルコニー、360°パノラマ有り、光ファイバー、オートロック、TVドアホン、防犯カメラ、宅配ボックス、駐輪場、エレベータ、都市ガス | ||
| 備考 | ■携帯電話の受信状況は、実際にご使用する携帯電話で室内から通話確認をお願いいたします。 ■退去時、室内ハウスクリーニング、エアコン洗浄(貸主指定業者)費用は、借主様負担となります。 ■CATV、CS、BS、インターネット設備にかかる加入費用、宅内工事及び月額使用料は借主様の負担となります。 | ||
| 周辺施設 |
コンビニ距離146m、スーパー距離153m、病院距離660m |
||
| 物件番号 | 928116 | 取引態様 | 仲介 |
| 情報更新日 | 2025年12月25日 | ||
| 物件番号 | |||
敷金・礼金・家賃・入居時期時期など、何でもご相談ください!
山手線・京浜東北線の2路線が使える便利な街・田端!
ハウス・トゥ・ハウス田端店で元気にお待ちしております!







