ベルシード西巣鴨902 9階 | 1K | 10.3万円
安心のオートロック付き!TVモニター付きインターホン!便利な宅配ボックス!
| 賃料 | 10.3万円 | 管理費・共益費 | 1.3万円 |
|---|---|---|---|
| 敷金/礼金 | なし / 1ヶ月 | 専有面積 | 27.81m² |
| 間取り | 1K | 階建 | 9階/15階建 |
ベルシード西巣鴨902の詳細
| 物件種別 | マンション | ||
|---|---|---|---|
| 賃料 | 10.3万円 | 管理費・共益費 | 1.3万円 |
| 敷金/保証金 | なし / - | 礼金/償却・敷引 | 1ヶ月 / - |
| 更新料 | 1.5ヶ月 | ||
| その他費用 |
室内抗菌代:16,500円 鍵交換費用:33,000円 |
||
| 所在地 | 東京都北区滝野川3丁目3-3 | ||
| 交通 |
JR京浜東北・根岸線「王子駅」 徒歩15分 |
||
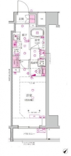
| 間取り | 1K | 間取り内訳 | |
| 専有面積 | 27.81m² | バルコニー面積 | |
| 築年月(築年数) | 2020年06月(築5年) | 方位 | 南東 |
| 建物構造 | RC(鉄筋コンクリート) | 所在階/階建 | 9階/15階建 |
| 総戸数 | 37戸 | 駐車場 | 無 |
| 保険料 | 不要 | 契約期間 | 2年間 |
| 現況(予定年月) | 2026年03月中旬 | ||
| 管理 | |||
| 設備・条件 | 2階以上、システムキッチン、バス・トイレ別、温水洗浄便座、浴室乾燥機、室内洗濯機置き場、フローリング、エアコン、バルコニー、分譲賃貸、敷金なし、保証人不要、BSアンテナ、CSアンテナ、オートロック、TVドアホン、宅配ボックス、駐輪場、エレベータ、都市ガス | ||
| 備考 | ベルプラス2200円(月額) 1年未満の解約の場合、総賃料2ヶ月分・1.5年未満は総賃料の1.5か月分の違約金あり。 | ||
| 周辺施設 |
コンビニ距離289m、スーパー距離96m、病院距離375m |
||
| 物件番号 | 991821 | 取引態様 | 仲介 |
| 情報更新日 | 2026年02月16日 | ||
| 物件番号 | |||
敷金・礼金・家賃・入居時期時期など、何でもご相談ください!
3路線3駅利用可の板橋エリアでお部屋探し♪
ハウス・トゥ・ハウス板橋東口店で元気にお待ちしております!







