ベルシード西巣鴨801 8階 | 1R | 10.5万円
安心のオートロック付き!TVモニター付きインターホン!
| 賃料 | 10.5万円 | 管理費・共益費 | 1.5万円 |
|---|---|---|---|
| 敷金/礼金 | なし / 2ヶ月 | 専有面積 | 27.81m² |
| 間取り | 1R | 階建 | 8階/15階建 |
ベルシード西巣鴨801の詳細
| 物件種別 | マンション | ||
|---|---|---|---|
| 賃料 | 10.5万円 | 管理費・共益費 | 1.5万円 |
| 敷金/保証金 | なし / - | 礼金/償却・敷引 | 2ヶ月 / - |
| 更新料 | 1.5ヶ月 | ||
| その他費用 |
室内抗菌代(必須):16,500円 鍵交換費用:33,000円 |
||
| 所在地 | 東京都北区滝野川3丁目3-3 | ||
| 交通 |
JR京浜東北・根岸線「王子駅」 徒歩15分 |
||
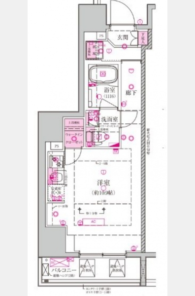
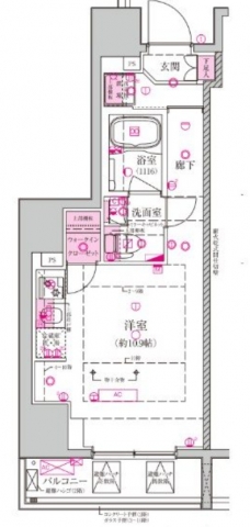
| 間取り | 1R | 間取り内訳 | |
| 専有面積 | 27.81m² | バルコニー面積 | |
| 築年月(築年数) | 2020年06月(築5年) | 方位 | 南東 |
| 建物構造 | RC(鉄筋コンクリート) | 所在階/階建 | 8階/15階建 |
| 総戸数 | 37戸 | 駐車場 | |
| 保険料 | 不要 | 契約期間 | 2年間 |
| 現況(予定年月) | 2026年04月 | ||
| 管理 | |||
| 設備・条件 | 2階以上、角部屋、システムキッチン、バス・トイレ別、温水洗浄便座、浴室乾燥機、室内洗濯機置き場、フローリング、エアコン、ウォークインクローゼット、バルコニー、分譲賃貸、敷金なし、保証人不要、ペット相談、BSアンテナ、CSアンテナ、オートロック、TVドアホン、防犯カメラ、宅配ボックス、駐輪場、エレベータ、都市ガス | ||
| 備考 | ベルプラス(必須)2200円(月額) ペット飼育可能の場合は敷金1か月積増(償却) 短期解約違約金:1年未満は総賃料2ヶ月分、1年以上1.5年未満は総賃料1.5ヶ月分 退去時にクリーニング費用:44000円、エアコンクリーニング:1基13200円※25平米以上は1平米あたり1105円 | ||
| 周辺施設 |
コンビニ距離289m、スーパー距離96m、病院距離375m |
||
| 物件番号 | 1001660 | 取引態様 | 仲介 |
| 情報更新日 | 2026年03月10日 | ||
| 物件番号 | |||
敷金・礼金・家賃・入居時期時期など、何でもご相談ください!
JR山手線・巣鴨駅から徒歩1分!
ハウス・トゥ・ハウス巣鴨店で元気にお待ちしております!







