ザ・パークハビオ駒込204 2階 | 1K | 11.5万円
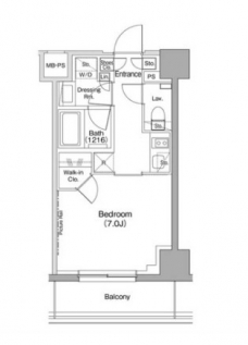
室内設備はシステムキッチン・追い焚き・CSなど充実した設備を備え付けています。収納はウォークインクロ
| 賃料 | 11.5万円 | 管理費・共益費 | 1.5万円 |
|---|---|---|---|
| 敷金/礼金 | 1ヶ月 / なし | 専有面積 | 25.06m² |
| 間取り | 1K | 階建 | 2階/9階建 |
ザ・パークハビオ駒込204の詳細
| 物件種別 | マンション | ||
|---|---|---|---|
| 賃料 | 11.5万円 | 管理費・共益費 | 1.5万円 |
| 敷金/保証金 | 1ヶ月 / - | 礼金/償却・敷引 | なし / - |
| 更新料 | 1ヶ月 | ||
| その他費用 | 鍵交換費用:33,000円 | ||
| 所在地 | 東京都北区中里3丁目11-13 | ||
| 交通 |
JR京浜東北・根岸線「田端駅」 徒歩11分 |
||
| 間取り | 1K | 間取り内訳 |
洋室 7 畳 1 室 |
| 専有面積 | 25.06m² | バルコニー面積 | |
| 築年月(築年数) | 2020年02月(築6年) | 方位 | 南 |
| 建物構造 | RC(鉄筋コンクリート) | 所在階/階建 | 2階/9階建 |
| 総戸数 | - | 駐車場 | |
| 保険料 | 要 | 契約期間 | 2年間 |
| 現況(予定年月) | 2026年04月下旬 | ||
| 管理 | |||
| 設備・条件 | 2階以上、南向き部屋、システムキッチン、バス・トイレ別、温水洗浄便座、追い焚き、室内洗濯機置き場、ウォークインクローゼット、バルコニー、礼金なし、ペット相談、楽器相談、事務所相談、インターネット対応、BSアンテナ、CSアンテナ、オートロック、TVドアホン、防犯カメラ、宅配ボックス、バイク置き場、駐輪場、エレベータ | ||
| 備考 | 解約予告2ヶ月前 短期解約違約金有 | ||
| 周辺施設 |
コンビニ距離385m、スーパー距離317m、病院距離74m |
||
| 物件番号 | 985068 | 取引態様 | 仲介 |
| 情報更新日 | 2026年02月04日 | ||
| 物件番号 | |||
敷金・礼金・家賃・入居時期時期など、何でもご相談ください!
山手線・東京メトロ南北線沿線でのお部屋探しなら
当店にお任せください!
ハウス・トゥ・ハウス駒込店で元気にお待ちしております!







