グランデュール富士301 3階 | 1DK | 14.7万円
オートロック・防犯カメラ設置で安心のセキュリティ
| 賃料 | 14.7万円 | 管理費・共益費 | 0.6万円 |
|---|---|---|---|
| 敷金/礼金 | 1ヶ月 / 1ヶ月 | 専有面積 | 33.02m² |
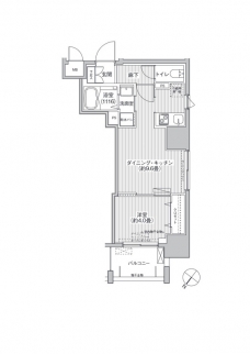
| 間取り | 1DK | 階建 | 3階/14階建 |
360度パノラマ
グランデュール富士301の詳細
| 物件種別 | マンション | ||
|---|---|---|---|
| 賃料 | 14.7万円 | 管理費・共益費 | 0.6万円 |
| 敷金/保証金 | 1ヶ月 / - | 礼金/償却・敷引 | 1ヶ月 / - |
| 更新料 | 1ヶ月 | ||
| その他費用 |
契約事務手数料:5,500円 鍵交換費用:22,000円 |
||
| 所在地 | 東京都荒川区西日暮里2丁目48-2 | ||
| 交通 | |||
| 間取り | 1DK | 間取り内訳 | |
| 専有面積 | 33.02m² | バルコニー面積 | |
| 築年月(築年数) | 2020年03月(築5年) | 方位 | - |
| 建物構造 | RC(鉄筋コンクリート) | 所在階/階建 | 3階/14階建 |
| 総戸数 | 57戸 | 駐車場 | |
| 保険料 | 要 20,000円 2年 | 契約期間 | 2年間 |
| 現況(予定年月) | 即時 | ||
| 管理 | |||
| 設備・条件 | 2階以上、システムキッチン、カウンターキッチン、バス・トイレ別、温水洗浄便座、浴室乾燥機、追い焚き、室内洗濯機置き場、フローリング、エアコン、バルコニー、即入居可、360°パノラマ有り、BSアンテナ、CSアンテナ、光ファイバー、オートロック、TVドアホン、宅配ボックス、駐輪場、エレベータ | ||
| 備考 | (解約時)清掃費用+エアコン内部洗浄費用+実費 ※インターネット:工事予約状況により申込から利用開始まで日数がかかる場合があります。掲載情報と現況が異なる場合は、現況を優先とします。 | ||
| 周辺施設 |
コンビニ距離208m、スーパー距離356m、病院距離1,559m |
||
| 物件番号 | 973748 | 取引態様 | 仲介 |
| 情報更新日 | 2026年01月13日 | ||
| 物件番号 | |||
敷金・礼金・家賃・入居時期時期など、何でもご相談ください!
歴史と情緒が薫る街・西日暮里でお部屋探し♪
ハウス・トゥ・ハウス西日暮里店で元気にお待ちしております!







