GRAN PASEO本駒込1401 14階 | 1LDK | 20万円
「GRAN PASEO本駒込」:文京区エリアの新居にピッタリ。近くのトップパルケ 田端銀座店まで徒
| 賃料 | 20万円 | 管理費・共益費 | 1.5万円 |
|---|---|---|---|
| 敷金/礼金 | 1ヶ月 / なし | 専有面積 | 43.59m² |
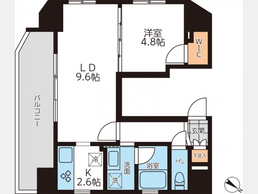
| 間取り | 1LDK | 階建 | 14階/14階建 |
360度パノラマ
GRAN PASEO本駒込1401の詳細
| 物件種別 | マンション | ||
|---|---|---|---|
| 賃料 | 20万円 | 管理費・共益費 | 1.5万円 |
| 敷金/保証金 | 1ヶ月 / - | 礼金/償却・敷引 | なし / - |
| 更新料 | 1ヶ月 | ||
| その他費用 | 鍵交換費用:16,500円 | ||
| 所在地 | 東京都文京区本駒込5丁目69-7 | ||
| 交通 | |||
| 間取り | 1LDK | 間取り内訳 | |
| 専有面積 | 43.59m² | バルコニー面積 | |
| 築年月(築年数) | 2018年07月(築7年) | 方位 | - |
| 建物構造 | RC(鉄筋コンクリート) | 所在階/階建 | 14階/14階建 |
| 総戸数 | 22戸 | 駐車場 | 無 |
| 保険料 | 要 24,000円 2年 | 契約期間 | 2年間 |
| 現況(予定年月) | 即時 | ||
| 管理 | |||
| 設備・条件 | 2階以上、最上階、システムキッチン、バス・トイレ別、温水洗浄便座、浴室乾燥機、追い焚き、室内洗濯機置き場、フローリング、エアコン、バルコニー、即入居可、礼金なし、保証人不要、2人入居相談、360°パノラマ有り、インターネット対応、オートロック、TVドアホン、防犯カメラ、宅配ボックス、バイク置き場、駐輪場、エレベータ、都市ガス | ||
| 備考 | 駐輪場代440円(月額) 掲載情報と現況が異なる場合は、現況を優先とします。 | ||
| 周辺施設 |
コンビニ距離238m、スーパー距離418m、病院距離675m |
||
| 物件番号 | 973935 | 取引態様 | 仲介 |
| 情報更新日 | 2026年03月03日 | ||
| 物件番号 | |||
敷金・礼金・家賃・入居時期時期など、何でもご相談ください!
JR山手線・巣鴨駅から徒歩1分!
ハウス・トゥ・ハウス巣鴨店で元気にお待ちしております!







