リヴシティ西川口参番館404 4階 | 1K | 7.6万円
できるだけ早めに不動産情報を集めたい方は当社スタッフまでご連絡ください。地域の不動産情報をいち早くお
| 賃料 | 7.6万円 | 管理費・共益費 | 1万円 |
|---|---|---|---|
| 敷金/礼金 | なし / 1ヶ月 | 専有面積 | 25.74m² |
| 間取り | 1K | 階建 | 4階/9階建 |
リヴシティ西川口参番館404の詳細
| 物件種別 | マンション | ||
|---|---|---|---|
| 賃料 | 7.6万円 | 管理費・共益費 | 1万円 |
| 敷金/保証金 | なし / - | 礼金/償却・敷引 | 1ヶ月 / - |
| 更新料 | 1.5ヶ月 | ||
| その他費用 |
室内消毒代:16,500円 契約事務手数料 :5,500円 鍵交換費用:38,500円 |
||
| 所在地 | 埼玉県川口市西川口1丁目4-23 | ||
| 交通 |
JR京浜東北・根岸線「西川口駅」 徒歩2分 JR京浜東北・根岸線「蕨駅」 徒歩26分 |
||
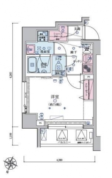
| 間取り | 1K | 間取り内訳 |
洋室 7.6 畳 K |
| 専有面積 | 25.74m² | バルコニー面積 | |
| 築年月(築年数) | 2019年11月(築6年) | 方位 | 北西 |
| 建物構造 | RC(鉄筋コンクリート) | 所在階/階建 | 4階/9階建 |
| 総戸数 | 32戸 | 駐車場 | 無 |
| 保険料 | 要 | 契約期間 | 2年間 |
| 現況(予定年月) | 2026年02月中旬 | ||
| 管理 | |||
| 設備・条件 | 2階以上、角部屋、システムキッチン、バス・トイレ別、温水洗浄便座、浴室乾燥機、室内洗濯機置き場、フローリング、エアコン、シューズインクローゼット、バルコニー、分譲賃貸、敷金なし、保証人不要、ペット相談、2人入居相談、インターネット対応、BSアンテナ、CSアンテナ、オートロック、TVドアホン、防犯カメラ、宅配ボックス、バイク置き場、駐輪場、エレベータ、都市ガス | ||
| 備考 | にじいろサポート24(火災保険付帯)2200円(月額) ペット飼育可:小型犬・猫どちらか1匹のみ、礼金1ヶ月増額。 更新事務手数料5500円。 1年未満解約:違約金として賃料+管理費1ヶ月分。 退去時クリーニング費用:賃料 1ヶ月+消費税。 解約予告2ヶ月前。 | ||
| 周辺施設 |
コンビニ距離119m、スーパー距離262m、病院距離479m |
||
| 物件番号 | 969693 | 取引態様 | 仲介 |
| 情報更新日 | 2026年02月14日 | ||
| 物件番号 | |||
敷金・礼金・家賃・入居時期時期など、何でもご相談ください!
埼玉県への玄関口・川口でお部屋探し♪
ハウス・トゥ・ハウス川口店で元気にお待ちしております!







