センテニアル王子神谷208 2階 | 1K | 9.8万円
ユニクロ 王子神谷店まで徒歩6分と気軽に行けるのがポイント。宅配ボックスは時間を問わず荷物を受け取る
| 賃料 | 9.8万円 | 管理費・共益費 | 0.45万円 |
|---|---|---|---|
| 敷金/礼金 | 1ヶ月 / 1ヶ月 | 専有面積 | 25.06m² |
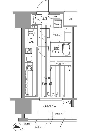
| 間取り | 1K | 階建 | 2階/14階建 |
センテニアル王子神谷208の詳細
| 物件種別 | マンション | ||
|---|---|---|---|
| 賃料 | 9.8万円 | 管理費・共益費 | 0.45万円 |
| 敷金/保証金 | 1ヶ月 / - | 礼金/償却・敷引 | 1ヶ月 / - |
| 更新料 | 1ヶ月 | ||
| その他費用 | 鍵交換費用:22,000円 | ||
| 所在地 | 東京都北区神谷1丁目15-1 | ||
| 交通 |
JR京浜東北・根岸線「東十条駅」 徒歩12分 JR京浜東北・根岸線「東十条駅」 徒歩12分 |
||
| 間取り | 1K | 間取り内訳 |
洋室 8 畳 |
| 専有面積 | 25.06m² | バルコニー面積 | |
| 築年月(築年数) | 2010年02月(築16年) | 方位 | 東 |
| 建物構造 | RC(鉄筋コンクリート) | 所在階/階建 | 2階/14階建 |
| 総戸数 | - | 駐車場 |
空無 空き要確認/サイズ制限あり/仲介手数料1.1ヶ月分 |
| 保険料 | 要 18,000円 2年 | 契約期間 | 2年間 |
| 現況(予定年月) | 2026年02月中旬 | ||
| 管理 | |||
| 設備・条件 | 2階以上、システムキッチン、バス・トイレ別、温水洗浄便座、浴室乾燥機、室内洗濯機置き場、フローリング、エアコン、バルコニー、保証人不要、楽器相談、インターネット対応、BSアンテナ、CSアンテナ、CATV、オートロック、TVドアホン、防犯カメラ、宅配ボックス、駐輪場、エレベータ、都市ガス | ||
| 備考 | 退去時に清掃費代等の負担あり/アップライトピアノ可能(9:00~20:00)/掲載情報と現況が異なる場合は、現況を優先とします。 | ||
| 周辺施設 |
コンビニ距離142m、スーパー距離291m、病院距離752m |
||
| 物件番号 | 984532 | 取引態様 | 仲介 |
| 情報更新日 | 2026年02月03日 | ||
| 物件番号 | |||
敷金・礼金・家賃・入居時期時期など、何でもご相談ください!
3路線3駅利用可の板橋エリアでお部屋探し♪
ハウス・トゥ・ハウス板橋東口店で元気にお待ちしております!







