ハーモニーレジデンス板橋シティサイト305 3階 | 1DK | 9.9万円
日々の暮らしに便利なまいばすけっと 志村3丁目店(スーパー)まで5分で行けます。
| 賃料 | 9.9万円 | 管理費・共益費 | 1.5万円 |
|---|---|---|---|
| 敷金/礼金 | 1ヶ月 / 1ヶ月 | 専有面積 | 25.59m² |
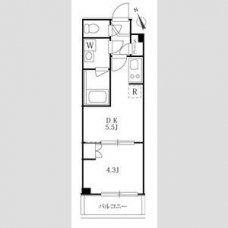
| 間取り | 1DK | 階建 | 3階/4階建 |
ハーモニーレジデンス板橋シティサイト305の詳細
| 物件種別 | マンション | ||
|---|---|---|---|
| 賃料 | 9.9万円 | 管理費・共益費 | 1.5万円 |
| 敷金/保証金 | 1ヶ月 / - | 礼金/償却・敷引 | 1ヶ月 / - |
| 更新料 | 1.5ヶ月 | ||
| その他費用 |
プレミアデスク(2年/税込):16,500円 鍵交換費用:38,500円 |
||
| 所在地 | 東京都板橋区志村2丁目15-11 | ||
| 交通 | |||
| 間取り | 1DK | 間取り内訳 | |
| 専有面積 | 25.59m² | バルコニー面積 | |
| 築年月(築年数) | 2019年11月(築6年) | 方位 | 南西 |
| 建物構造 | RC(鉄筋コンクリート) | 所在階/階建 | 3階/4階建 |
| 総戸数 | - | 駐車場 | |
| 保険料 | 要 16,000円 2年 | 契約期間 | 2年間 |
| 現況(予定年月) | 即時 | ||
| 管理 | |||
| 設備・条件 | 2階以上、システムキッチン、バス・トイレ別、温水洗浄便座、浴室乾燥機、室内洗濯機置き場、フローリング、エアコン、バルコニー、分譲賃貸、即入居可、ペット相談、インターネット対応、オートロック、防犯カメラ、宅配ボックス、駐輪場、エレベータ、プロパンガス、デザイナーズ | ||
| 備考 | ペット飼育相談可能(小型犬または猫1匹まで 飼育時:礼金1ヶ月プラス)。短期解約違約金有:1年未満2ヶ月。 | ||
| 周辺施設 |
コンビニ距離417m、スーパー距離336m、病院距離1,203m |
||
| 物件番号 | 949173 | 取引態様 | 仲介 |
| 情報更新日 | 2026年03月09日 | ||
| 物件番号 | |||
敷金・礼金・家賃・入居時期時期など、何でもご相談ください!
3路線3駅利用可の板橋エリアでお部屋探し♪
ハウス・トゥ・ハウス板橋東口店で元気にお待ちしております!







