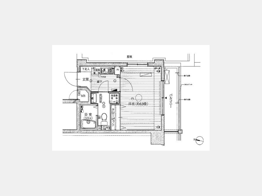
アクシーズタワー川口幸町1003 10階 | 1K | 7.1万円
南向き角部屋2面採光で明るいお部屋です
| 賃料 | 7.1万円 | 管理費・共益費 | 1.2万円 |
|---|---|---|---|
| 敷金/礼金 | 1ヶ月 / 1ヶ月 | 専有面積 | 22.00m² |
| 間取り | 1K | 階建 | 10階/10階建 |
アクシーズタワー川口幸町1003の詳細
| 物件種別 | マンション | ||
|---|---|---|---|
| 賃料 | 7.1万円 | 管理費・共益費 | 1.2万円 |
| 敷金/保証金 | 1ヶ月 / - | 礼金/償却・敷引 | 1ヶ月 / - |
| 更新料 | 1ヶ月 | ||
| その他費用 |
除菌消臭:8,800円 鍵交換費用:35,200円 室内清掃費用:51,700円 |
||
| 所在地 | 埼玉県川口市幸町2丁目7-10 | ||
| 交通 |
JR京浜東北・根岸線「川口駅」 徒歩7分 JR京浜東北・根岸線「西川口駅」 徒歩22分 |
||
| 間取り | 1K | 間取り内訳 |
洋室 6.9 畳 |
| 専有面積 | 22.00m² | バルコニー面積 | |
| 築年月(築年数) | 2008年03月(築17年) | 方位 | 南 |
| 建物構造 | RC(鉄筋コンクリート) | 所在階/階建 | 10階/10階建 |
| 総戸数 | - | 駐車場 | |
| 保険料 | 要 20,000円 2年 | 契約期間 | 2年間 |
| 現況(予定年月) | 2026年01月下旬 | ||
| 管理 | |||
| 設備・条件 | 2階以上、最上階、角部屋、南向き部屋、バス・トイレ別、温水洗浄便座、浴室乾燥機、室内洗濯機置き場、エアコン、バルコニー、保証人不要、オートロック、宅配ボックス、エレベータ、プロパンガス | ||
| 備考 | FAST ASSIST241100円(月額) 365日以内の解約の場合、短期解約違約金 賃料(管理費込)1ヶ月分。 更新事務手数料0.5ヶ月。 | ||
| 周辺施設 |
コンビニ距離175m、スーパー距離417m、病院距離1,709m |
||
| 物件番号 | 952608 | 取引態様 | 仲介 |
| 情報更新日 | 2026年01月21日 | ||
| 物件番号 | |||
敷金・礼金・家賃・入居時期時期など、何でもご相談ください!
埼玉県への玄関口・川口でお部屋探し♪
ハウス・トゥ・ハウス川口店で元気にお待ちしております!







