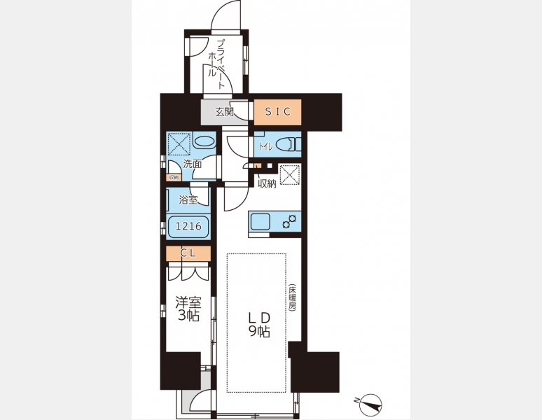
グランカーサ本駒込202 2階 | 1LDK | 16.5万円
東京都立駒込病院まで498mです。荷物を受け取れないときは宅配ボックスに届けられるので、外出や入浴
| 賃料 | 16.5万円 | 管理費・共益費 | 1万円 |
|---|---|---|---|
| 敷金/礼金 | なし / なし | 専有面積 | 36.56m² |
| 間取り | 1LDK | 階建 | 2階/15階建(B1階) |
グランカーサ本駒込202の詳細
| 物件種別 | マンション | ||
|---|---|---|---|
| 賃料 | 16.5万円 | 管理費・共益費 | 1万円 |
| 敷金/保証金 | なし / - | 礼金/償却・敷引 | なし / - |
| 更新料 | 1ヶ月 | ||
| その他費用 | 鍵交換費用:16,500円 | ||
| 所在地 | 東京都文京区本駒込3丁目30-3 | ||
| 交通 | |||
| 間取り | 1LDK | 間取り内訳 | |
| 専有面積 | 36.56m² | バルコニー面積 | |
| 築年月(築年数) | 2019年08月(築6年) | 方位 | 南西 |
| 建物構造 | RC(鉄筋コンクリート) | 所在階/階建 | 2階/15階建(B1階) |
| 総戸数 | 30戸 | 駐車場 |
空無 空き要確認。 平置き、敷金1ヶ月、礼金1ヶ月 |
| 保険料 | 要 24,000円 2年 | 契約期間 | 2年間 |
| 現況(予定年月) | 相談 | ||
| 管理 | |||
| 設備・条件 | 2階以上、角部屋、システムキッチン、バス・トイレ別、温水洗浄便座、浴室乾燥機、追い焚き、室内洗濯機置き場、フローリング、エアコン、床暖房、シューズインクローゼット、バルコニー、礼金なし、敷金なし、ペット相談、インターネット対応、BSアンテナ、CSアンテナ、オートロック、防犯カメラ、宅配ボックス、駐輪場、エレベータ、都市ガス | ||
| 備考 | ■ペット相談可:小型犬・猫1匹まで飼育可。(敷金1ヶ月積み増し) | ||
| 周辺施設 |
コンビニ距離141m、スーパー距離511m、病院距離498m |
||
| 物件番号 | 1004319 | 取引態様 | 仲介 |
| 情報更新日 | 2026年03月16日 | ||
| 物件番号 | |||
敷金・礼金・家賃・入居時期時期など、何でもご相談ください!
JR山手線・巣鴨駅から徒歩1分!
ハウス・トゥ・ハウス巣鴨店で元気にお待ちしております!







