ベルシード池袋本町601 6階 | 1K | 10.1万円
セキュリティ面は、TVインターホン・オートロックなどを備え付けているので安心して暮らせます。
| 賃料 | 10.1万円 | 管理費・共益費 | 1.5万円 |
|---|---|---|---|
| 敷金/礼金 | なし / 151,500円 | 専有面積 | 25.52m² |
| 間取り | 1K | 階建 | 6階/9階建 |
360度パノラマ
ベルシード池袋本町601の詳細
| 物件種別 | マンション | ||
|---|---|---|---|
| 賃料 | 10.1万円 | 管理費・共益費 | 1.5万円 |
| 敷金/保証金 | なし / - | 礼金/償却・敷引 | 151,500円 / - |
| 更新料 | 1.5ヶ月 | ||
| その他費用 |
室内抗菌代(必須):16,500円 鍵交換費用:33,000円 |
||
| 所在地 | 東京都豊島区池袋本町2丁目29-15 | ||
| 交通 | |||
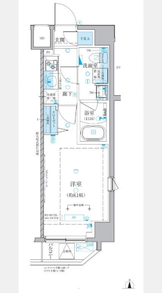
| 間取り | 1K | 間取り内訳 |
洋室 8.1 畳 1 室 |
| 専有面積 | 25.52m² | バルコニー面積 | |
| 築年月(築年数) | 2019年09月(築6年) | 方位 | 南 |
| 建物構造 | RC(鉄筋コンクリート) | 所在階/階建 | 6階/9階建 |
| 総戸数 | 74戸 | 駐車場 | |
| 保険料 | 要 | 契約期間 | 2年間 |
| 現況(予定年月) | 2026年02月下旬 | ||
| 管理 | |||
| 設備・条件 | 2階以上、角部屋、南向き部屋、システムキッチン、バス・トイレ別、温水洗浄便座、浴室乾燥機、室内洗濯機置き場、フローリング、エアコン、バルコニー、分譲賃貸、敷金なし、ペット相談、360°パノラマ有り、インターネット対応、BSアンテナ、CSアンテナ、CATV、オートロック、TVドアホン、防犯カメラ、宅配ボックス、駐輪場、エレベータ、都市ガス | ||
| 備考 | ベルプラス[家財保険/設備トラブル24時間駆付/騒音・近隣トラブルサポート]2200円(月額) ペット飼育時敷金1か月積増(償却)。 ペット種類・インターネット・BS・CS・駐輪場など共有部分は建物管理会社に要確認。 短期解約違約金:1年未満総賃料2ヶ月分、1年以上1.5年未満総賃料1.5ヶ月分。 退去時にクリーニング費用:44000円、エアコンクリーニング:1基13200円※25平米以上は1平米あたり1155円加算。 | ||
| 周辺施設 |
コンビニ距離177m、スーパー距離384m、病院距離795m |
||
| 物件番号 | 965679 | 取引態様 | 仲介 |
| 情報更新日 | 2026年01月31日 | ||
| 物件番号 | |||
敷金・礼金・家賃・入居時期時期など、何でもご相談ください!
3路線3駅利用可の板橋エリアでお部屋探し♪
ハウス・トゥ・ハウス板橋東口店で元気にお待ちしております!







