メゾン大塚604 6階 | 1R | 8.8万円
お車でご案内いたします。お気軽にお問い合わせください。
| 賃料 | 8.8万円 | 管理費・共益費 | 2.8万円 |
|---|---|---|---|
| 敷金/礼金 | 1ヶ月 / 2ヶ月 | 専有面積 | 25.32m² |
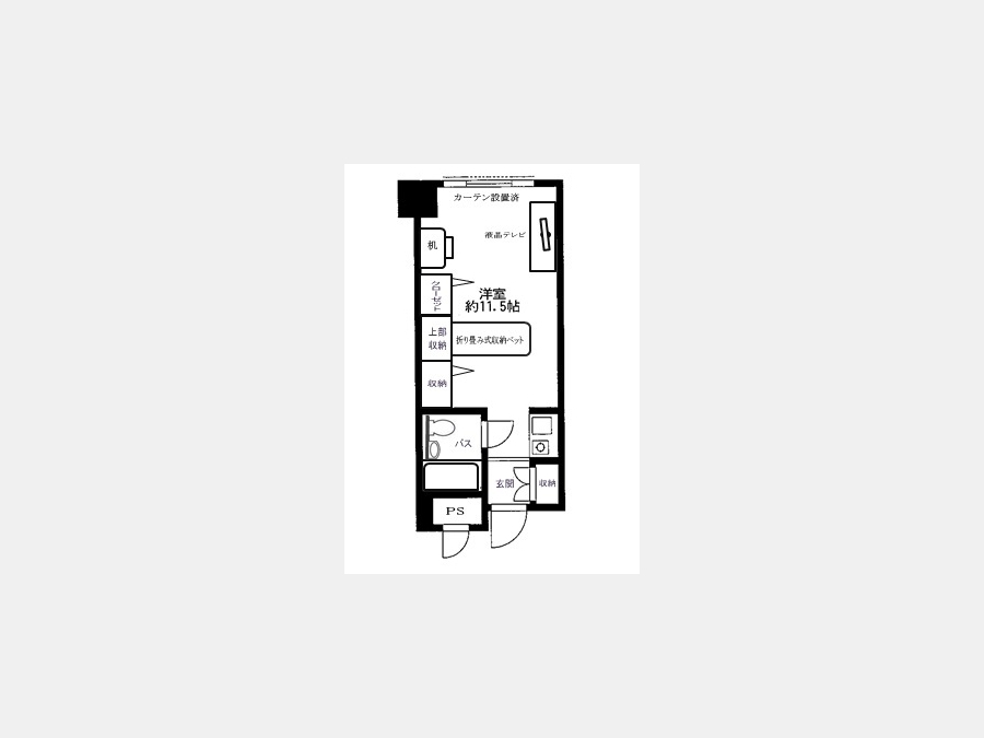
| 間取り | 1R | 階建 | 6階/9階建(B1階) |
メゾン大塚604の詳細
| 物件種別 | マンション | ||
|---|---|---|---|
| 賃料 | 8.8万円 | 管理費・共益費 | 2.8万円 |
| 敷金/保証金 | 1ヶ月 / - | 礼金/償却・敷引 | 2ヶ月 / - |
| 更新料 | - | ||
| その他費用 | - | ||
| 所在地 | 東京都豊島区南大塚1丁目51-7 | ||
| 交通 | |||
| 間取り | 1R | 間取り内訳 |
洋室 11.5 畳 |
| 専有面積 | 25.32m² | バルコニー面積 | |
| 築年月(築年数) | 1986年11月(築39年) | 方位 | 北 |
| 建物構造 | SRC(鉄骨鉄筋コンクリート) | 所在階/階建 | 6階/9階建(B1階) |
| 総戸数 | 88戸 | 駐車場 | 無 |
| 保険料 | 要 18,000円 | 契約期間 | 2年間 |
| 現況(予定年月) | 2026年03月中旬 | ||
| 管理 | |||
| 設備・条件 | 2階以上、温水洗浄便座、フローリング、エアコン、保証人不要、インターネット対応、オートロック、エレベータ | ||
| 備考 | ◆定期借家2年契約:再契約可(再契約料1ヶ月分) ◆清掃代39600円※20超+1375円/ ◆エアコン清掃代16500円/台 | ||
| 周辺施設 |
コンビニ距離120m、スーパー距離304m、病院距離333m |
||
| 物件番号 | 998831 | 取引態様 | 仲介 |
| 情報更新日 | 2026年03月04日 | ||
| 物件番号 | |||
敷金・礼金・家賃・入居時期時期など、何でもご相談ください!
歴史と情緒が薫る街・西日暮里でお部屋探し♪
ハウス・トゥ・ハウス西日暮里店で元気にお待ちしております!







