パークアクシス西ヶ原802 8階 | 1K | 10.9万円
花と森の東京病院まで159mです。収納はシューズボックス・クロゼットなどが備え付けられているので、
| 賃料 | 10.9万円 | 管理費・共益費 | 0.8万円 |
|---|---|---|---|
| 敷金/礼金 | 1ヶ月 / 1ヶ月 | 専有面積 | 25.84m² |
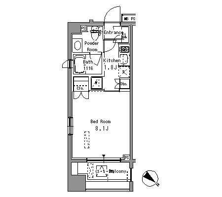
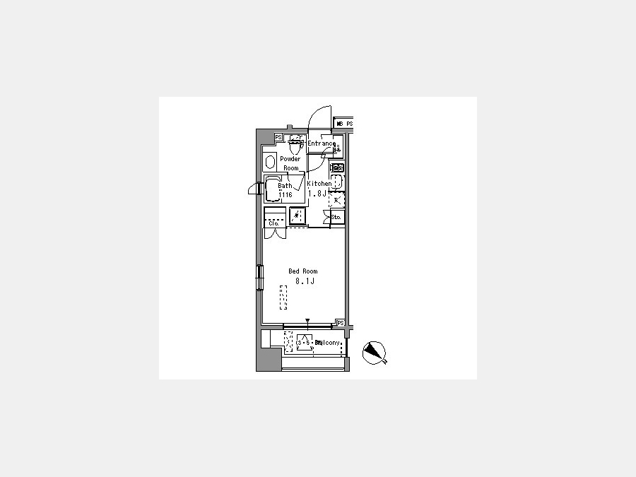
| 間取り | 1K | 階建 | 8階/10階建 |
パークアクシス西ヶ原802の詳細
| 物件種別 | マンション | ||
|---|---|---|---|
| 賃料 | 10.9万円 | 管理費・共益費 | 0.8万円 |
| 敷金/保証金 | 1ヶ月 / - | 礼金/償却・敷引 | 1ヶ月 / - |
| 更新料 | 1ヶ月 | ||
| その他費用 | 鍵交換費用:16,500円 | ||
| 所在地 | 東京都北区西ケ原2丁目45-10 | ||
| 交通 |
JR京浜東北・根岸線「王子駅」 徒歩13分 |
||
| 間取り | 1K | 間取り内訳 |
洋室 8.1 畳 |
| 専有面積 | 25.84m² | バルコニー面積 | |
| 築年月(築年数) | 2007年10月(築18年) | 方位 | 北東 |
| 建物構造 | RC(鉄筋コンクリート) | 所在階/階建 | 8階/10階建 |
| 総戸数 | - | 駐車場 |
空無 要空き確認。 月額賃料:22000円(税別) サイズ:長さ5050、幅1850、高さ1550、重量2000 |
| 保険料 | 要 | 契約期間 | 2年間 |
| 現況(予定年月) | 2026年02月上旬 | ||
| 管理 | |||
| 設備・条件 | 2階以上、角部屋、バス・トイレ別、温水洗浄便座、浴室乾燥機、室内洗濯機置き場、フローリング、エアコン、バルコニー、ペット相談、楽器相談、インターネット対応、BSアンテナ、CSアンテナ、CATV、オートロック、TVドアホン、宅配ボックス、バイク置き場、駐輪場、エレベータ | ||
| 備考 | ■ペット相談可 ■1年未満解約賃料1ヶ月の違約金有 ■保証会社加入必須※大手法人等未加入の場合敷金2ヶ月 | ||
| 周辺施設 |
コンビニ距離430m、スーパー距離482m、病院距離159m |
||
| 物件番号 | 975468 | 取引態様 | 仲介 |
| 情報更新日 | 2026年01月12日 | ||
| 物件番号 | |||
敷金・礼金・家賃・入居時期時期など、何でもご相談ください!
3路線3駅利用可の板橋エリアでお部屋探し♪
ハウス・トゥ・ハウス板橋東口店で元気にお待ちしております!







