SIN-City板橋本町203 2階 | 1K | 6.9万円
近くにはローソンストア100 LS板橋本町店(徒歩5分)がありちょっとした買い物に便利です。共用部
| 賃料 | 6.9万円 | 管理費・共益費 | 1.2万円 |
|---|---|---|---|
| 敷金/礼金 | 1ヶ月 / 1ヶ月 | 専有面積 | 21.00m² |
| 間取り | 1K | 階建 | 2階/7階建 |
360度パノラマ
SIN-City板橋本町203の詳細
| 物件種別 | マンション | ||
|---|---|---|---|
| 賃料 | 6.9万円 | 管理費・共益費 | 1.2万円 |
| 敷金/保証金 | 1ヶ月 / - | 礼金/償却・敷引 | 1ヶ月 / - |
| 更新料 | 1ヶ月 | ||
| その他費用 |
除菌消臭:8,800円 鍵交換費用:35,200円 室内清掃費用:58,300円 |
||
| 所在地 | 東京都板橋区稲荷台26-6 | ||
| 交通 | |||
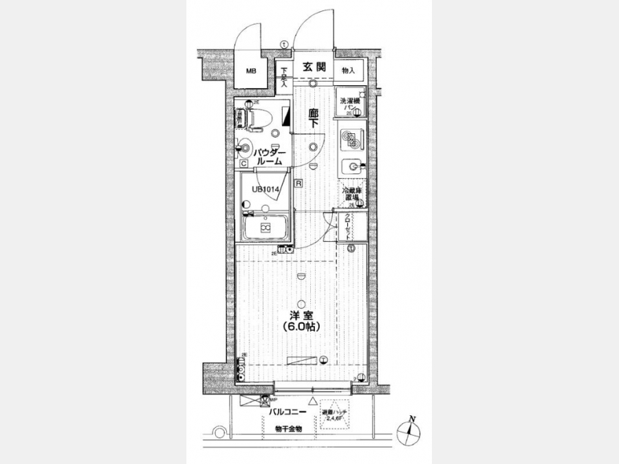
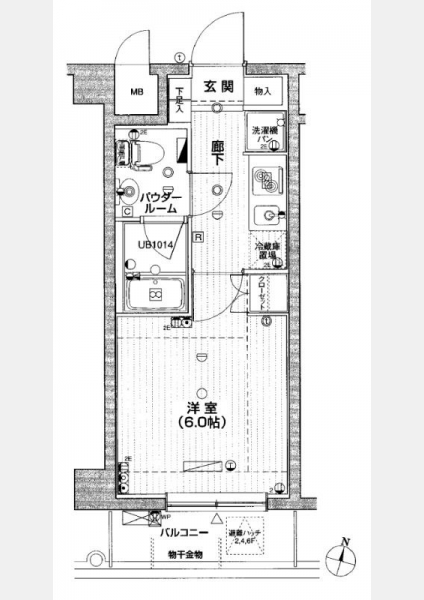
| 間取り | 1K | 間取り内訳 | |
| 専有面積 | 21.00m² | バルコニー面積 | |
| 築年月(築年数) | 2007年03月(築19年) | 方位 | 南 |
| 建物構造 | RC(鉄筋コンクリート) | 所在階/階建 | 2階/7階建 |
| 総戸数 | - | 駐車場 | |
| 保険料 | 要 20,000円 2年 | 契約期間 | 2年間 |
| 現況(予定年月) | 相談 | ||
| 管理 | |||
| 設備・条件 | 2階以上、南向き部屋、バス・トイレ別、温水洗浄便座、浴室乾燥機、室内洗濯機置き場、エアコン、バルコニー、保証人不要、360°パノラマ有り、オートロック、TVドアホン、防犯カメラ、宅配ボックス、エレベータ | ||
| 備考 | 24時間緊急サポート1100円(月額) 1年未満の解約は総賃料1ヶ月分の違約金有。更新事務手数料:新賃料の0.55ヶ月 掲載情報と現況が異なる場合は、現況を優先とします。 | ||
| 周辺施設 |
コンビニ距離357m、スーパー距離299m、病院距離598m |
||
| 物件番号 | 995449 | 取引態様 | 仲介 |
| 情報更新日 | 2026年02月27日 | ||
| 物件番号 | |||
敷金・礼金・家賃・入居時期時期など、何でもご相談ください!
3路線3駅利用可の板橋エリアでお部屋探し♪
ハウス・トゥ・ハウス板橋東口店で元気にお待ちしております!







