プライムアーバン池袋1009 10階 | 1SK | 14.8万円
池袋警察署 平和通交番が116mのところにあります。収納はクロゼット・シューズボックス・全居室収納
| 賃料 | 14.8万円 | 管理費・共益費 | 1万円 |
|---|---|---|---|
| 敷金/礼金 | 1ヶ月 / 1ヶ月 | 専有面積 | 31.63m² |
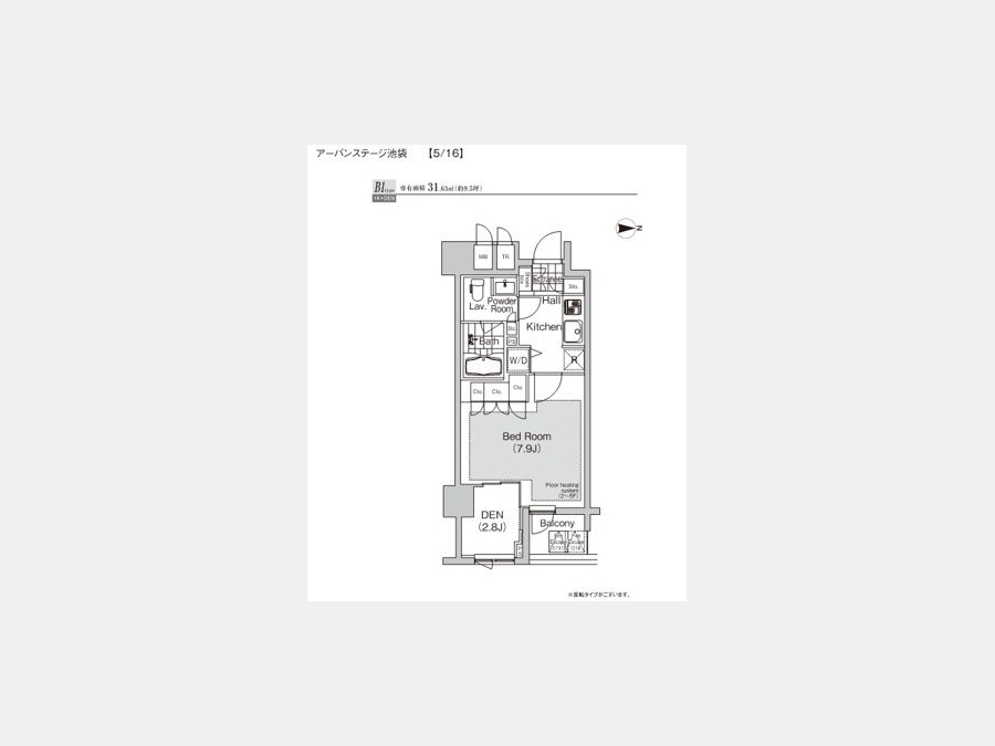
| 間取り | 1SK | 階建 | 10階/14階建 |
360度パノラマ
プライムアーバン池袋1009の詳細
| 物件種別 | マンション | ||
|---|---|---|---|
| 賃料 | 14.8万円 | 管理費・共益費 | 1万円 |
| 敷金/保証金 | 1ヶ月 / - | 礼金/償却・敷引 | 1ヶ月 / - |
| 更新料 | 1ヶ月 | ||
| その他費用 | 鍵交換費用:36,300円 | ||
| 所在地 | 東京都豊島区池袋2丁目50-4 | ||
| 交通 | |||
| 間取り | 1SK | 間取り内訳 |
洋室 7.9 畳 1 室 S 2.8 畳 1 室 K 1 室 |
| 専有面積 | 31.63m² | バルコニー面積 | |
| 築年月(築年数) | 2006年12月(築19年) | 方位 | 東 |
| 建物構造 | RC(鉄筋コンクリート) | 所在階/階建 | 10階/14階建 |
| 総戸数 | 130戸 | 駐車場 | 空無 |
| 保険料 | 要 21,500円 2年 | 契約期間 | 2年間 |
| 現況(予定年月) | 2026年02月下旬 | ||
| 管理 | |||
| 設備・条件 | 2階以上、システムキッチン、バス・トイレ別、温水洗浄便座、浴室乾燥機、追い焚き、室内洗濯機置き場、フローリング、エアコン、バルコニー、2人入居相談、360°パノラマ有り、BSアンテナ、CSアンテナ、CATV、光ファイバー、オートロック、TVドアホン、防犯カメラ、宅配ボックス、駐輪場、エレベータ、都市ガス | ||
| 備考 | 高速1Gbpsハイスピード・ベンダー光:月額基本料2178円(税込み)から。退去時のハウスクリーニング代・エアコン洗浄代(貸主指定業者施工)は借主様負担となります。駐輪場:初回登録料2200円(区画指定あり・ステッカーあり)。 | ||
| 周辺施設 |
コンビニ距離98m、スーパー距離182m、病院距離252m |
||
| 物件番号 | 985396 | 取引態様 | 仲介 |
| 情報更新日 | 2026年02月04日 | ||
| 物件番号 | |||
敷金・礼金・家賃・入居時期時期など、何でもご相談ください!
3路線3駅利用可の板橋エリアでお部屋探し♪
ハウス・トゥ・ハウス板橋東口店で元気にお待ちしております!







