レアライズ巣鴨205 2階 | 1K | 10万円
お車でご案内いたします。お気軽にお問い合わせください。
| 賃料 | 10万円 | 管理費・共益費 | 1万円 |
|---|---|---|---|
| 敷金/礼金 | なし / 1ヶ月 | 専有面積 | 25.52m² |
| 間取り | 1K | 階建 | 2階/7階建 |
レアライズ巣鴨205の詳細
| 物件種別 | マンション | ||
|---|---|---|---|
| 賃料 | 10万円 | 管理費・共益費 | 1万円 |
| 敷金/保証金 | なし / - | 礼金/償却・敷引 | 1ヶ月 / - |
| 更新料 | 0.5ヶ月 | ||
| その他費用 |
契約事務手数料:5,500円 消臭除菌代:8,800円 あんしんサポートα:16,500円 鍵交換費用:27,500円 |
||
| 所在地 | 東京都豊島区巣鴨5丁目8-3 | ||
| 交通 | |||
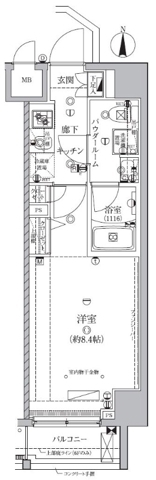
| 間取り | 1K | 間取り内訳 | |
| 専有面積 | 25.52m² | バルコニー面積 | |
| 築年月(築年数) | 2019年03月(築7年) | 方位 | 南 |
| 建物構造 | RC(鉄筋コンクリート) | 所在階/階建 | 2階/7階建 |
| 総戸数 | - | 駐車場 | |
| 保険料 | 要 10,000円 1年 | 契約期間 | 1年間 |
| 現況(予定年月) | 2026年05月下旬 | ||
| 管理 | |||
| 設備・条件 | 2階以上、角部屋、南向き部屋、システムキッチン、バス・トイレ別、温水洗浄便座、浴室乾燥機、室内洗濯機置き場、フローリング、エアコン、バルコニー、敷金なし、インターネット対応、BSアンテナ、オートロック、TVドアホン、防犯カメラ、宅配ボックス、駐輪場、エレベータ、都市ガス | ||
| 備考 | ■解約予告2ヶ月前 ■1年未満解約時賃料1ヶ月分の違約金あり ■更新事務手数料0.275ヶ月 ■退去時クリーニング費用借主負担 | ||
| 周辺施設 |
コンビニ距離282m、スーパー距離162m、病院距離304m |
||
| 物件番号 | 1001172 | 取引態様 | 仲介 |
| 情報更新日 | 2026年03月08日 | ||
| 物件番号 | |||
敷金・礼金・家賃・入居時期時期など、何でもご相談ください!
JR山手線・巣鴨駅から徒歩1分!
ハウス・トゥ・ハウス巣鴨店で元気にお待ちしております!







