パークアクシス駒込902 9階 | 2LDK | 25.1万円
巣鴨警察署 駒込駅前交番が家から282mのところにあります。収納はクロゼット・シューズボックスなど豊
| 賃料 | 25.1万円 | 管理費・共益費 | 1万円 |
|---|---|---|---|
| 敷金/礼金 | 1ヶ月 / 1ヶ月 | 専有面積 | 52.59m² |
| 間取り | 2LDK | 階建 | 9階/15階建 |
パークアクシス駒込902の詳細
| 物件種別 | アパート | ||
|---|---|---|---|
| 賃料 | 25.1万円 | 管理費・共益費 | 1万円 |
| 敷金/保証金 | 1ヶ月 / - | 礼金/償却・敷引 | 1ヶ月 / - |
| 更新料 | 1ヶ月 | ||
| その他費用 | 鍵交換費用:16,500円 | ||
| 所在地 | 東京都豊島区駒込3丁目23-13 | ||
| 交通 |
JR京浜東北・根岸線「上中里駅」 徒歩13分 |
||
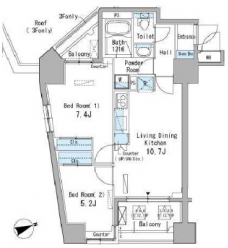
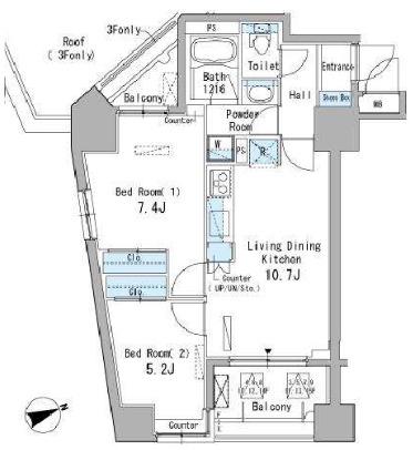
| 間取り | 2LDK | 間取り内訳 |
洋室 7.4 畳 洋室 5.2 畳 LDK 10.7 畳 |
| 専有面積 | 52.59m² | バルコニー面積 | |
| 築年月(築年数) | 2009年11月(築16年) | 方位 | 東 |
| 建物構造 | RC(鉄筋コンクリート) | 所在階/階建 | 9階/15階建 |
| 総戸数 | - | 駐車場 | |
| 保険料 | 要 | 契約期間 | 2年間 |
| 現況(予定年月) | 2026年01月下旬 | ||
| 管理 | |||
| 設備・条件 | 2階以上、システムキッチン、バス・トイレ別、温水洗浄便座、浴室乾燥機、追い焚き、室内洗濯機置き場、フローリング、エアコン、バルコニー、ペット相談、楽器相談、インターネット対応、BSアンテナ、CSアンテナ、CATV、オートロック、防犯カメラ、宅配ボックス、エレベータ | ||
| 備考 | ■1年未満解約時、賃料1ヶ月分の違約金有 ■保証会社加入必須※大手法人等未加入の場合敷金2ヶ月 ■ペット相談可:小型犬・猫2匹まで、敷金1ヶ月積み増し(サイズ制限有・一部小型犬不可) ■ピアノ相談可:アップライトピアノ可・グランドピアノ不可 | ||
| 周辺施設 |
コンビニ距離39m、スーパー距離155m、病院距離978m |
||
| 物件番号 | 964964 | 取引態様 | 仲介 |
| 情報更新日 | 2026年02月04日 | ||
| 物件番号 | |||
敷金・礼金・家賃・入居時期時期など、何でもご相談ください!
山手線・東京メトロ南北線沿線でのお部屋探しなら
当店にお任せください!
ハウス・トゥ・ハウス駒込店で元気にお待ちしております!







